


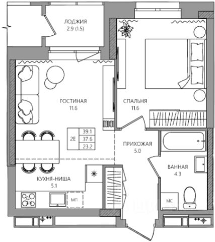
122 053 ₽/м²
КУПИ КВАРТИРУ ПОЛУЧИ ШАНС НА 1 МЛН РУБ! (до 30.12.2025) - Скидка для участников СВО 3% (до 30.12.25) - Ипотека 10,5% для всех (до 30.12.2025) - Рассрочка для будущих мам (30.12.25) - Скидка 3% при стопроцентной оплате (до 30.11.25) - ТРЕЙД-ИН (30.12.2025) - Бесплатное такси до офиса продаж ЖК Ближе - идеальное место для тех, кто ищет комфортное жилье в отличном месте ПЕРВЫЙ ДОМ УЖЕ СДАН! О жилом комплексе Жилой комплекс расположен в деревне Кондратово — стремительно развивающемся ближайшем пригороде Перми. На машине из центра города можно доехать за 20 минут. Регулярно ходит и общественный транспорт, а автобусная остановка расположена в 400 м от ЖК. Здесь уже есть всё, что нужно для комфортной жизни: Дом спорта "Красава", магазины, аптеки, кафе, детский сад. Совсем скоро будут сданы новая школа и поликлиника. А отличная транспортная доступность локации и богатая инфраструктура сочетаются здесь с тишиной и спокойствием. Комфорт во дворе В уютном пространстве комплекса размещены спортивные площадки, места для детских игр и отдельно — зона отдыха для взрослых. Парковочные места расположены так, чтобы не мешать пешеходам. Стильный минимализм фасадов комплекса выглядит очень современно. Элегантность присутствует и внутри домов: удобные дизайнерские холлы станут любимым местом встреч соседей. Вы сможете почувствовать атмосферу дома, лишь переступив порог парадной. Качественная отделка "под ключ" Порадует новосёлов, конечно же, и отделка "под ключ". К моменту Вашего заселения всё уже будет сделано: металлические входные и ламинированные межкомнатные двери, качественный линолеум и обои приятных оттенков. В ванных комнатах и совмещённых санузлах на полу и стенах от пола до потолка — керамическая плитка. Будет установлена вся сантехника и мойки. Вам останется только переехать в новый дом и жить в нём долго и счастливо. Застройщики: Водопроводная, 6/1 - ООО "Спецстрой ПЗСП-Водопроводная", Водопроводная, 6/2 - ООО "Спецстрой ПЗСП-Кондратово", Водопроводная, 6/4 - ООО "Спецстрой ПЗСП-Водопроводная, 6/4".








































































































































