


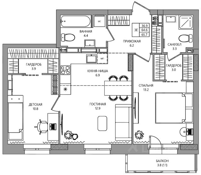
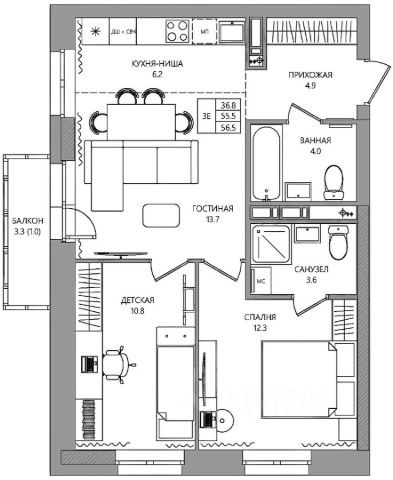
174 861 ₽/м²
Жилой дом ESTETICA - новый дом от девелопера ИНГРУПП Эстетика жизни. Эстетика пространства. Эстетика людей. Жилой дом ESTETICA это место, где эстетика жизни, пространства и людей становится единым целым. Мы создали его для тех, кто ценит индивидуальность, гармонию и вдохновение. Жить в доме ESTETICA значит выбрать образ жизни, где сочетаются элегантная лаконичность и тепло домашней атмосферы. Гармония и комфорт Здесь вы найдете идеальную комбинацию стиля и функциональности место, где можно наслаждаться жизнью во всей её красоте и гармонии. В доме ESTETICA ценится экологичность и комфорт, и каждый элемент поддерживает общую концепцию. Качество и надежность Мы стремимся к высокому уровню качества в каждом шаге: от выбора материалов до реализации. Современные технологии и инновационные решения встроены в каждый аспект дома, чтобы сделать вашу жизнь легче и удобнее. Забота о себе и семье В жилом доме ESTETICA высокий уровень заботы о вашем благополучии, где внешняя и внутренняя красота имеют одинаковое значение. Здесь вы найдете спокойствие и уют, необходимые для полноценной городской жизни. 11 этажей, всего 117 квартир Высота потолков 2,72 м Подземный паркинг, кладовые и колясочные Детская игровая площадка, зоны отдыха и воркаут-пространство Система Умный дом и видеонаблюдение Отделка класса Инстайл включена в стоимость Выбирайте удобный способ оплаты: Рассрочка от девелопера 0% с ПВ от 30% 100% оплата с гарантией. Счета-эскроу Ипотека от 6% от ведущих банков Трейд-ин. Поможем с продажей своей квартиры бесплатно! Материнский капитал Специальные условия для участников СВО


































































































