Только на Циан
5 900 000 ₽
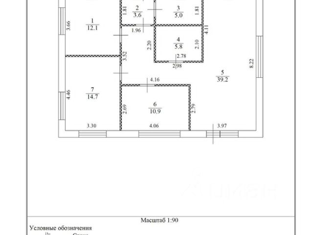
Продается дом!
Характеристики объекта:
- Общая площадь дома: 48 кв.м
- Построен из кирпича
- В доме есть газ
- центральное водоснабжение
- центральная канализация
Планировка:
- 3 комнаты
- Кухня
- Веранда
На участке:
- Плодовые деревья: яблони, вишни, крыжовник, смородина
- Металлический гараж для автомобиля
- Подсобные постройки и яма для хранения овощей
Дополнительно:
- Участок 7 соток, ухожен, есть возможность обустройства садового уголка или зоны отдыха
Возможен обмен на 2 комнатную квартиру УП на Кислотных дачах.
Торг.
Цена и условия продажи — обсуждаются.
Звоните и записывайтесь на просмотр!
Код пользователя: 168384
Номер в базе: 7836225 Купить дом с газом в деревне Хухрята Пермского края.


