


163 644 ₽/м²
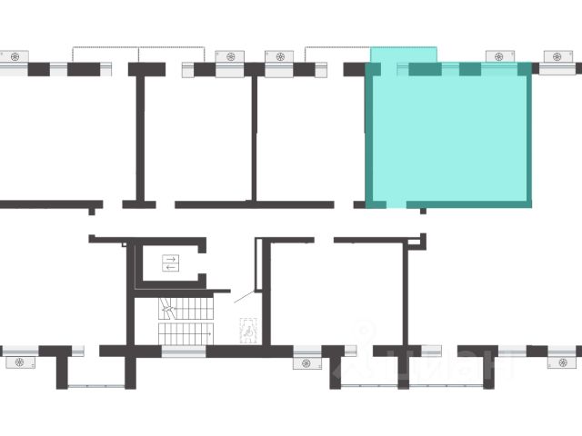
Однокомнатная студия от застройщика с предчистовой отделкой в ЖК "Квартал "Юность"" на 3 этаже. Общая площадь: 24.26 кв.м. Высота потолков 2.7 м. Дом монолитный, многоподъездный, переменной этажности, от 9 до 16 этажей. Квартира находится в 3-й секции высотой 11 этажей в корпусе 2. На этаже 8 квартир. В подъезде 1 пассажирский и 1 грузовой лифт. Окончание строительства - 4 квартал 2028 года. Оформление сделки по договору долевого участия. Студия в квартале "Юность". Особенности планировки: вид во двор. квартиры в нашей базе: ЮСТ01-Ж4.3.8. Квартал "Юность" расположен между улицами Лодыгина и Яблочкова. Обе названы в честь русских электротехников и изобретателей, которые занимались созданием электрических ламп. Это соседство вдохновило нас на метафору, которая легла в основу концепции проекта. В физике есть термин "суперпозиция" — наложение нескольких воздействий, приводящее к суммарному эффекту. Именно он лучше всего отражает идею проекта Брусники. "Юность" — это совокупность преимуществ в одном пространстве. Узнаваемая архитектура, уютные квартиры, безопасный двор, качественное озеленение — все эти элементы незаменимы и складываются в уникальный качественный продукт. Микрорайон Крохалева сочетает в себе черты делового центра и спокойного семейного квартала. Отсюда можно быстро добраться до всех деловых, транспортных и прогулочных зон Перми. Дорога до центра займёт 10-15 минут на автомобиле. Рядом, в пешей доступности уже есть необходимая социальная и коммерческая инфраструктура. "Юность" состоит из двух объёмов: вытянутого корпуса с разноуровневыми секциями и 16-этажной башни. Высота секций от 9 до 11 этажей делает дом комфортным для восприятия. Каркас дома выполнен из монолитного железобетона — это надежная и долговечная конструкция, которая прослужит не менее ста лет. Отделка фасада выполнена в светлой, природной гамме: белый, серо-коричневый и теплый бежевый цвета и выразительные вставки придают дому современный облик. Балконы и террасы на верхних этажах выступают связующими звеньями, они создают плавные переходы между секциями и создают дополнительную визуальную динамику. Уникальная форма участка позволила создать единую систему благоустройства с функциональными зонами: - Внешние пространства: Встречающая площадь с арт-объектом и кафе, рекреационная зона для отдыха и игр, прогулочный бульвар с торговыми павильонами все доступно горожанам. - Закрытый двор: Разделен на зоны для тихого отдыха и активных игр. Детские площадки для разных возрастов, включая экспериментальную для малышей. Родители могут наблюдать за детьми из-под навеса. - Озеленение: До 70% двора займут деревья, кустарники и цветы, высаженные с учетом календаря цветения для круглогодичной эстетики. Проект учитывает биоразнообразие, создавая среду для местной фауны. Купить квартиру до 8 млн. рублей в Пермском крае.
































































































































