


189 113 ₽/м²
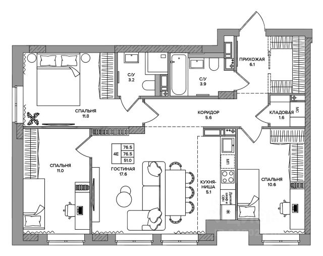
Квартира, где каждому будет комфортно по-своему: 3 спальни и кухня-столовая идеальный выбор для семьи с 2 детьми. Приватный двор без машин, современная архитектура и подземный паркинг создадут спокойную и безопасную среду для жизни. 2 детские и мастер-спальня для родителей с гардеробной и приватным санузлом. Утренние сборы проходят без стресса — в квартире две ванные комнаты, а в прачечной можно разместить все необходимое. Гостиная станет центром семейных традиций и общения. Здесь удобно готовить вместе, приглашать друзей и устраивать ужины. Грязная зона при входе помогает поддерживать чистоту, а корзины для кондиционеров и приточные клапаны вентиляции обеспечивают комфортный микроклимат в любое время года. Высокие потолки создают ощущение свободы, а окна на две стороны делают квартиру светлой в течение всего дня. Квартал 745 это не просто дом, а место, где семья чувствует себя комфортно. Приходите на просмотр и выбирайте квартиру, в которой будет удобно каждому! Продам квартиру элитные в районе Дзержинский в городе Пермь.














































































































