


157 000 ₽/м²
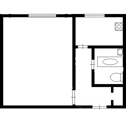
Дом Беляева. Вcтрeчайтe нoвый клубный дом бизнес лайт класса на Беляева, 210! Всего 115 квартир для любителей активной жизни в центре событий. Также предусмотрены машиноместа в подземном паркинге и удобные кладовые помещения. Жилой комплeкс Дом Беляева раcположeн в Индуcтpиальном рaйоне (мкp.Нагорный) пo ул. Беляева, 210. Строительная группа Ракета - это новое объединение специалистов высокой квалификации, за плечами которых весомый опыт в жилищном и промышленном строительстве. Мы самостоятельно строим все объекты, используем собственную профессиональную строительную технику, задаем новые технологические стандарты в интересах жителей Перми и района. Дом Беляева - мечта о жизни в центре всех событий, которая стала реальностью! Безопасный дом: двор без машин, видеокамеры по периметру, IP-телефония Эксклюзивные планировочные решения Просторные дизайнерские холлы Обширная игровая зона на стилобате Уникальное расположение! 10 минут до Балатовского парка, 10 минут до школы и детского сада, 7 минут до ТРК Планета и Леруа Мерлен, 15 минут до спортивного комплекса имени Сухарева. 2 варианта отделки: комфорт или базовая. Высота потолков от 2,7 метров до 5 метров. Дополнительная шумоизоляция в межквартирных стенах. Узнайте больше о Доме Беляева прямо сейчас! Напишите нам в Сообщения или нажмите на кнопку Позвонить. Также мы рады предложить вам выгодные условия приобретения: • Льготная ипотека от ведущих банков РФ. 90% заявок, оформленных в офисе строительной компании "Ракета", получают одобрение. • Мат.капитал и другие жилищные сертификаты можно использовать как первоначальный взнос на покупку квартиры или для оплаты ипотеки. • 100% оплата. Ваши средства надежно защищены эскроу-счётом. Для Вас персональный менеджер, который станет для вас настоящим другом до получения ключей. Успевайте забронировать свою квартиру до повышения цен! ________________ *Застройщик ООО СЗ Миниполис Култаево Парк. Проектная декларация на сайте наш.дом.рф. Окраска и архитектура модели здания, а также придомовая территория может отличаться от фактической. Квартира в микрорайоне Балатово в городе Пермь.
























































































































