


175 450 ₽/м²
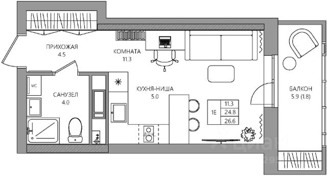
Клубный дом на Оборонщиков, 6 6 уровней безопасности: Закрытый двор без машин Огороженная территория Безопасное покрытие на детских площадках Видеонаблюдение на придомовой территории и в доме 24/7 Безбарьерная среда Консьерж Уникальные инженерные решения Горизонтальная разводка отопления Uponor, теплые полы в прихожей и санузлах Импортные лифты Радиаторы с термостатическими регуляторами Питьевой водопровод в каждой квартире - очистка воды до бутилированной питьевой Остекление окон 5-камерным ПВХ профилем с премиальной фурнитурой Собственный спортивный зал в доме - доступен только для жителей дома, без абонементов и посторонних людей. Его оборудуют кардио и силовыми тренажерами, зонами для групповых занятий, йоги или пилатеса. Тренироваться можно будет индивидуально или устраивать совместные занятия с соседями. Звукоизоляция Модернизированная конструкция пола дополнена звукоизоляционной плитой "Эковер стэп" Коммуникации вынесены в общий коридор, поэтому жителей не потревожит звук льющейся у соседей воды или другие неприятные шумы. Входные двери современного дизайна с дополнительным шумопоглощением. Кирпичные межквартирные стены Пермь, Закамск, ул. Оборонщиков, 6 Клубный дом на Оборонщиков, 6 ваш новый дом в самом сердце Закамска! Новый проект клубного дома от Группы компаний "Альфа" расположен в историческом районе Закамска, в близи набережной. Малоэтажный дом, продолжающий историческую архитектуру Закамска. О доме: В доме всего 4 этажа с лифтом, 72 квартиры. Разнообразные планировки - в Альфа доме вы найдете квартиры различных форматов — от уютных однокомнатных европланировок до просторных четырехкомнатных вариантов, а также уникальные мастер-спальни с гардеробными. Преимущества дома: Архитектура и благоустройство Новый дом встраивается в уже сложившийся облик района и украшает его. Арочная архитектура, большие витражные окна с заниженными широкими подоконниками, цветники. Дом, где очень приятно жить. Придомовая территория закрыта от посторонних, оснащена системой видеонаблюдения, контролем доступа. Уютное благоустройство камерный двор с пространством для игр и отдыха. Локация и инфраструктура Дом находится в районе с развитой инфраструктурой: В радиусе пешей доступности гимназия, школы, детские сады, супермаркеты, ТЦ "Астраханский", ТЦ "Союз". Парки и сады: парк "Счастье есть", сквер у дворца культуры им. Кирова, бульвар по ул. Ласьвинской, сквер им. Александра Невского, сквер по ул. Худанина. Дом для лучшей жизни! Преимущества покупки Надёжный застройщик Группа компаний "Альфа", 20 лет строим для Перми, более 30 возводимых жилых домов. Гибкие условия семейная ипотека, рассрочка, trade-in, приём сертификатов (маткапитал и др.). 100% оплата через эскроу-счета безопасность ваших средств.



































































































