


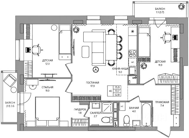
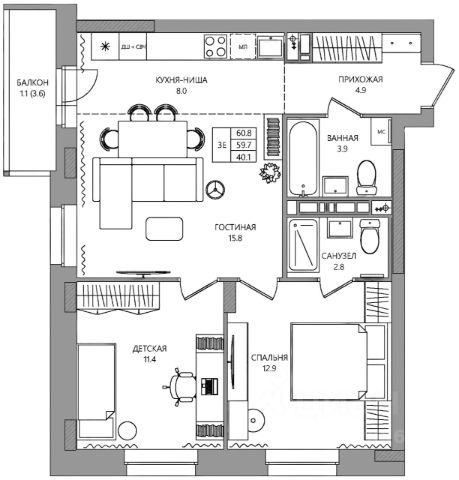
180 218 ₽/м²
"Элерон" — это дом, где каждый день начинается с ощущения полёта. Здесь свобода и лёгкость наполняют каждое пространство, создавая атмосферу, в которой идеи обретают крылья, а моменты — значимость. Дом словно парит над ритмом города, соединяя в себе динамику современности и спокойствие уединения. Концепция "Элерона" вдохновлена самим полётом — это жизнь на высоте, где всё построено для гармонии и движения вперёд. В доме всё продумано до мельчайших деталей, словно каждый метр — это часть точного маршрута. Стилобатная секция напоминает о крыльях самолёта, расправленных для нового взлёта. Семейные встречи в лаунж-зоне, работа в коворкинге и отдых во дворе здесь переплетаются в единый поток, где каждый шаг — это взвешенное решение, а каждая минута прожита осознанно. "Элерон" — ваш личный аэродром, готовый к новым горизонтам





































































































































































