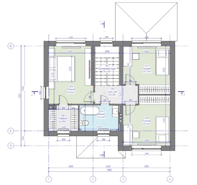
Новый современный коттедж рядом с городом в деревне Большая Мось. Посёлок быстро развивается, качественные дороги, есть вся инфраструктура, до города 15 минут! Дом для большой семьи, которая ценит качество и комфорт! ИПОТЕКА ОТ 3%! В доме выполнен качественный ремонт и установлена необходимая мебель. Дом газифицирован! Инфраструктура: Прекрасная транспортная доступность, несколько подъездных путей, дороги хорошего качества,в непосредственной близости остановки общественного транспорта. Школьный автобус осуществляет доставку детей до учебного заведения. До центра города 20 минут. Не далеко от дома сетевые продуктовые магазины (Монетка, Пятерочка), пункты выдачи ВБ и ОЗОН, аптека. В пешей доступности площадки для воркаута, пруды, где можно ловить рыбу и при желании искупаться. Техническое описание дома: Дом построен из качественных материалов: - Материал стен — газобетонный блок Теплит, с утеплением и системой мокрый фасад; - Фундамент свайно-ленточный: глубина свай 2,5 метра; - Перекрытия: межэтажные - железобетонные плиты с опорой на армопояс, перекрытия крыши - стропильная система (150 мм по стропилам и 50 мм по поперечине) с опорой на армопояс, утеплена;- Крыша двускатная — металлочерепица; Участок ровный, земля ИЖС, площадь 5.3 соток. Инженерные коммуникации: - отопление: первый этаж - тёплый пол + конвекторы, второй этаж - тёплый пол+радиаторы. Котлы установлены, газ заведён в дом; - канализация - автономная, 4.5, м.куб (3 кольца), заведена в дом, выполнена разводка по точкам; - водоснабжение - индивидуальная скважина, вода заведена в дом, скважина прокачана; - электроснабжение - 15 Квт, 380Вт, заведено в дом; Возможна покупка аналогичного дома в черновой и предчистовой отделке. Помощь в одобрении ипотечного кредита! Приглашаем на экскурсию!

















































