Мы используем куки-файлы. Соглашение об использовании
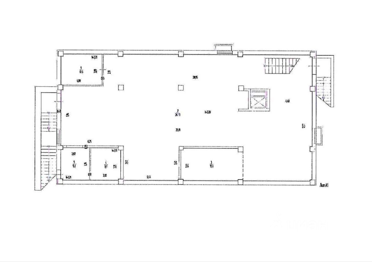
Помещение свободного назначения, 275 м²
Площадь275 м²
Этаж1 из 5
Отчёт о привлекательности объектаУзнайте, насколько помещение и район подходят для вашего бизнеса
Что входит в отчёт
  • Охват населения
  • Пешеходный трафик
  • Автомобильный трафик
  • Средний бюджет семьи по району
  • Арендные ставки рядом
  • Точки притяжения
  • Конкуренты в радиусе 1 км
  • Рекомендации по выбору места для бизнеса
Пермь, Мотовилихинский район Между ост. Площадь Дружбы и Цирк — мощный поток людей и транспорта ПАРАМЕТРЫ: — 275 м² — Потолки 3 м — Цоколь ТЦ — 2 отдельных входа с улицы — Ремонт — Возможно арендовать половину помещения ПОЧЕМУ ЭТО ВЫГОДНО: Первая линия — высокая видимость Сильный пешеходный трафик Бесплатная парковка перед ТЦ Можно разместить вывеску Подойдёт под магазин, услуги, офис, студию 210 000 ₽/мес. Возможен торг. Скидка до -10% на первые 3 месяца (на запуск и ремонт) Пишите/звоните — покажем в удобное время Такие локации быстро уходят
lock

Войдите или зарегистрируйтесь
для просмотра информации

Просматривайте условия сделки и всю информацию об объекте
Сохраняйте фильтры в поиске и не вводите заново
Доступ к избранному с любого устройства
Неограниченное добавление в избранное
Позвоните автору
Вам ответят на все вопросы
Остались вопросы по объявлению?
Позвоните владельцу объявления и уточните необходимую информацию.
  • Инфраструктура
  • Похожие рядом
Помощь надёжных риелторов
Риелтор партнёр Циан поможет купить или продать любую недвижимость
СобственникID 140538848
  • Предоставил паспорт
210 000 ₽/мес.

Прямая аренда (от года), минимальный срок аренды 12 месяцев, доступны арендные каникулы, обеспечительный платёж 1 ₽, предоплата за 1 месяц

2 949 $/мес.
2 544 /мес.
Цена за метр
9 164 ₽ в год
Налог
НДС включен: 37 868 ₽
Комиссия
нет
Коммунальные платежи
не включены
Эксплуатационные расходы
включены
СобственникID 140538848
  • Предоставил паспорт