Мы используем куки-файлы. Соглашение об использовании
Площадь55 м²
Этаж-1 из 5
ПомещениеСвободно
КлассB
Отчёт о привлекательности объектаУзнайте, насколько помещение и район подходят для вашего бизнеса
Что входит в отчёт
  • Охват населения
  • Пешеходный трафик
  • Автомобильный трафик
  • Средний бюджет семьи по району
  • Арендные ставки рядом
  • Точки притяжения
  • Конкуренты в радиусе 1 км
  • Рекомендации по выбору места для бизнеса
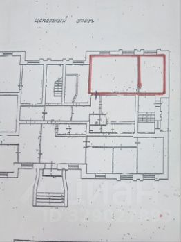
Офисное помещение в Ленинском районе, в центре Перми, отличный вариант для комфортной работы! Помещение площадью 55 м² расположено на цокольном этаже. Удобная кабинетная планировка, идеально для размещения небольшой компании, филиала или представительства. Выполнена качественная офисная отделка, помещение светлое и готово к использованию. Особенности и преимущества: В входной группе располагается охрана (круглосуточно). Проведён интернет. Хорошая транспортная доступность в центре города. Расположение на улице Пушкина 114, это развитая инфраструктура, близость к остановкам общественного транспорта, кафе, магазинам и банкам. Удобный подъезд и бесплатная парковка на улице. Минимальный срок аренды 11 месяцев. Аренда 44 000 ₽/месяц + КУ, без залога. Комиссия 50% по факту заселения.
lock

Войдите или зарегистрируйтесь
для просмотра информации

Просматривайте условия сделки и всю информацию об объекте
Сохраняйте фильтры в поиске и не вводите заново
Доступ к избранному с любого устройства
Неограниченное добавление в избранное
Позвоните автору
Вам ответят на все вопросы
Остались вопросы по объявлению?
Позвоните владельцу объявления и уточните необходимую информацию.
  • Инфраструктура
  • Похожие рядом
  • Общая площадь55 м²
Естественная вентиляция
Центральное отопление
Сигнализация
Помощь надёжных риелторов
Риелтор партнёр Циан поможет купить или продать любую недвижимость
  • 11 месяцев на Циане
  • 126 объявлений
  • 44 000 ₽/мес.

    Прямая аренда (от года), минимальный срок аренды 11 месяцев, обеспечительный платёж 44000 ₽, предоплата за 1 месяц

    578 $/мес.
    492 /мес.
    Цена за метр
    9 600 ₽ в год
    Налог
    НДС включен: 7 934 ₽
    Комиссия
    50%
    Коммунальные платежи
    не включены
    Эксплуатационные расходы
    не включены