Мы используем куки-файлы. Соглашение об использовании
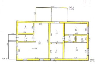
Площадь75,6 м²
Этажность1
Отчёт о привлекательности объектаУзнайте, насколько помещение и район подходят для вашего бизнеса
Что входит в отчёт
  • Охват населения
  • Пешеходный трафик
  • Автомобильный трафик
  • Средний бюджет семьи по району
  • Арендные ставки рядом
  • Точки притяжения
  • Конкуренты в радиусе 1 км
  • Рекомендации по выбору места для бизнеса
Продам здание с земельным участком по адресу: Кунгурский район, с.Серга, ул.Октябрьская, д.3. Здание деревянное, общая площадь 75,6 м2, высота потолка 2,5м, два отдельных входа, отопление печное, кадастровый номер здания 59:24:2080104:290. Земельный участок 221 м2, кадастровый номер 59:24:2080104:142. Земельный участок и здание в собственности. Собственник я. Цена 40 тысяч рублей.
lock

Войдите или зарегистрируйтесь
для просмотра информации

Просматривайте условия сделки и всю информацию об объекте
Сохраняйте фильтры в поиске и не вводите заново
Доступ к избранному с любого устройства
Неограниченное добавление в избранное
Позвоните автору
Вам ответят на все вопросы
Остались вопросы по объявлению?
Позвоните владельцу объявления и уточните необходимую информацию.
  • Инфраструктура
  • Похожие рядом
Помощь надёжных риелторов
Риелтор партнёр Циан поможет купить или продать любую недвижимость
Автор объявленияID 19454618
  • Документы проверены
  • 7 лет 7 месяцев на Циане
  • 21 объявление
  • 40 000 ₽
    539 $
    452
    Цена за метр
    530 ₽
    Налог
    УСН
    Автор объявленияID 19454618
    Документы проверены