Мы используем куки-файлы. Соглашение об использовании
Площадь179,4 м²
Этажность1
Отчёт о привлекательности объектаУзнайте, насколько помещение и район подходят для вашего бизнеса
Что входит в отчёт
  • Охват населения
  • Пешеходный трафик
  • Автомобильный трафик
  • Средний бюджет семьи по району
  • Арендные ставки рядом
  • Точки притяжения
  • Конкуренты в радиусе 1 км
  • Рекомендации по выбору места для бизнеса
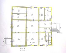
Продам здание с земельным участком по адресу: Кунгурский район, с.Серга, ул.Трактовая, д.14а. Здание деревянное, общая площадь 179,4 м2, высота потолка 3,2м, три отдельных входа, кадастровый номер здания 59:24:2080104:455. Земельный участок 604 м2, кадастровый номер 59:24:2080104:151. Земельный участок и здание в собственности. Собственник я. Цена 120 тысяч рублей. Либо сдам в долгосрочную аренду 1 000 рублей в месяц. Залог - один месяц аренды (верну после прекращения договора аренды).
lock

Войдите или зарегистрируйтесь
для просмотра информации

Просматривайте условия сделки и всю информацию об объекте
Сохраняйте фильтры в поиске и не вводите заново
Доступ к избранному с любого устройства
Неограниченное добавление в избранное
Позвоните автору
Вам ответят на все вопросы
Остались вопросы по объявлению?
Позвоните владельцу объявления и уточните необходимую информацию.
  • Инфраструктура
  • Похожие рядом
Помощь надёжных риелторов
Риелтор партнёр Циан поможет купить или продать любую недвижимость
Автор объявленияID 19454618
  • Документы проверены
  • 7 лет 6 месяцев на Циане
  • 18 объявлений
  • 120 000 ₽
    1 609 $
    1 368
    Цена за метр
    669 ₽
    Налог
    УСН
    Автор объявленияID 19454618
    Документы проверены