Мы используем куки-файлы. Соглашение об использовании

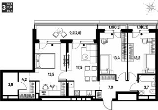
Продается 3-комн. квартира, 84,4 м²

Общая площадь84,4 м²
Жилая площадь40,1 м²
Площадь кухни17,5 м²
Этаж2 из 16
Год сдачи2026
ДомНе сдан
ОтделкаЧистовая
Продаётся 3-комнатная квартира в строящемся доме (Дягилева, 2), срок сдачи: II-кв. 2026, общей площадью 84.4 кв.м., на 2 этаже. Новый жилой комплекс "Клубный пригород "МЫ" от застройщика "Девелопмент-ЮГ" расположен по адресу д. Кондратово, пр-т Дягилева, 4.

О квартире

Тип жилья

Новостройка

Общая площадь

84,4 м²

Жилая площадь

40,1 м²

Площадь кухни

17,5 м²

Высота потолков

2,57 м

Отделка

Чистовая

О доме

Количество лифтов

1 грузовой

Тип дома

Монолитный

Пандус

Есть

Понравилась квартира — узнайте о ней больше

Застройщик ответит на все вопросы

Отделка квартиры

Чистовая: ремонт сделан, остаётся расставить мебель и заселиться

Отделка в ЖК

  • Чистовая
  • Без отделки

3D-тур

Посмотрите 3D-тур, чтобы оценить объект
Похоже на то, что вы ищете?

Акции в ЖК «Мы. Клубный пригород»

Узнайте про персональные условия и дополнительные скидки при покупке квартиры у застройщика

Материнский капитал

Ипотечный калькулятор
  • Базовая
  • Семейная
  • ИТ-ипотека
  • 20%
  • 30%
  • 40%
  • 50%
лет
  • 10 лет
  • 20 лет
  • 30 лет
Загружаем предложения от застройщика и банков

Расположение

Корпус проверен наш.дом.рф
Обновлено 14 мая 2026
  • Нет в реестре проблемных объектов
  • Застройщик не банкрот
  • Есть эскроу счёт
  • Актуальные фото стройки

Ещё квартиры в жилом комплексе

273 квартиры в продаже · Сдача в 2026—2027, есть сданные
ЗастройщикДевелопмент-Юг
Год основания: 1995
Строится: 20 домов в 7 ЖК
12 874 400 ₽
Цена за метр
152 540 ₽/м²
Условия сделки
долевое участие (214-ФЗ)