Мы используем куки-файлы. Соглашение об использовании

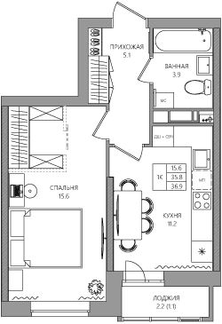
Продается 1-комн. квартира, 36,9 м²

Общая площадь36,9 м²
Жилая площадь15,6 м²
Площадь кухни11,2 м²
Этаж16 из 22
Год сдачи2027
ДомНе сдан
ОтделкаПредчистовая
PORTA21 там, где создается сообщество Этот дом — как современная гавань, где встречаются семьи, друзья и соседи. Это место, где формируются традиции, а общие пространства наполняются голосами детей и светом дружеских встреч. Прямо в вашем доме — торговая галерея, где каждый день начинается с маленького удовольствия. Утренний кофе или необходимые повседневные покупки — всё это на расстоянии одного шага. Подземный паркинг Продуманное решение для современных жителей. Здесь предусмотрены станции зарядки для электромобилей, пункт подкачки шин и усилители сотовой связи. Каждая деталь пространства отражает заботу о вашем времени. Просторный зонированный двор на стилобате Место для отдыха, общения и активного досуга. Зонированные пространства позволяют каждому найти своё место: от тихих уголков для размышлений до детских площадок для активных игр. Терраса на крыше Ваш личный оазис для отдыха. Две уникальные зоны: рабочая с минималистичными лавками, встроенными зарядками и столами для работы лаунж зона с видом на Каму среди цветников и искусственных туй. ул. Батумская, 21 22 этажа в 1 секции и 13 этажей во 2 секции Квартиры от 26,6 до 75,9 кв.м 348 квартир Высота потолков 2,72 м Окончание строительства дома — 4 квартал 2027 года

О квартире

Тип жилья

Новостройка

Общая площадь

36,9 м²

Жилая площадь

15,6 м²

Площадь кухни

11,2 м²

Высота потолков

2,74 м

Санузел

1 совмещенный

Балкон/лоджия

1 лоджия

Отделка

Предчистовая

О доме

Количество лифтов

2 грузовых

Тип дома

Монолитно-кирпичный

Парковка

Подземная

Понравилась квартира — узнайте о ней больше

Застройщик ответит на все вопросы

Отделка квартиры

Предчистовая — остаётся установить сантехнику, розетки, двери и навести красоту: поклеить обои и уложить на пол покрытие

Отделка в ЖК

  • Чистовая
  • Предчистовая

О ЖК «ПОРТА 21»

  • Сдача комплекса
    Сдача в 4 кв. 2027
  • Застройщик
    ИНГРУПП ДЕВЕЛОПМЕНТ
  • Класс
    Комфорт
  • Тип дома
    Монолитно-кирпичный
  • Парковка
    Подземная, гостевая
  • Отделка
    Предчистовая, чистовая
  • Тип комплекса
    Жилой комплекс
Похоже на то, что вы ищете?

Особенности жилого комплекса

  • Парковка

  • Внутренний двор

  • Входная группа

  • Лифт

Подробнее о жилом комплексе

Акции в ЖК «ПОРТА 21»

Узнайте про персональные условия и дополнительные скидки при покупке квартиры у застройщика
Ипотечный калькулятор
  • Базовая
  • Семейная
  • ИТ-ипотека
  • 20%
  • 30%
  • 40%
  • 50%
лет
  • 10 лет
  • 20 лет
  • 30 лет
Загружаем предложения от застройщика и банков

Расположение

Корпус проверен наш.дом.рф
Обновлено 22 апреля 2026
  • Нет в реестре проблемных объектов
  • Застройщик не банкрот
  • Есть эскроу счёт
  • Актуальные фото стройки

Ещё квартиры в жилом комплексе

109 квартир в продаже · Сдача в 4 кв. 2027
ЗастройщикИНГРУПП ДЕВЕЛОПМЕНТ
Год основания: 2006
Строится: 14 домов в 7 ЖК
5 846 000 ₽
Цена за метр
158 428 ₽/м²
Условия сделки
свободная продажа