Мы используем куки-файлы. Соглашение об использовании
Обновлено: 16 мар, 17:03
Объявление снято с публикации

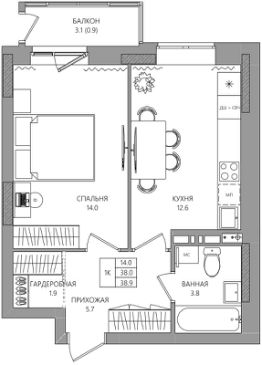
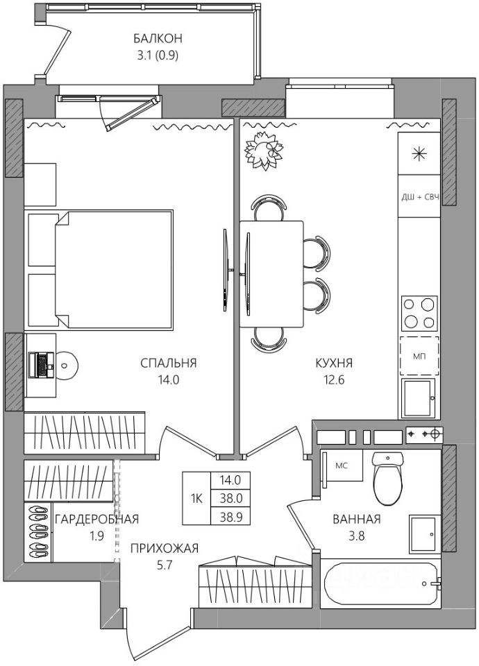
Продается 1-комн. квартира, 38,9 м²

Общая площадь38,9 м²
Жилая площадь14 м²
Площадь кухни12,6 м²
Этаж7 из 8
Год сдачи2027
ДомНе сдан
Объявление снято с публикации, поищите ещё что-нибудь

О квартире

Тип жилья

Новостройка

Общая площадь

38,9 м²

Жилая площадь

14 м²

Площадь кухни

12,6 м²

Высота потолков

2,71 м

Балкон/лоджия

1 балкон

О доме

Количество лифтов

3 грузовых

Тип дома

Монолитно-кирпичный

7 961 000 ₽
Цена за метр
204 653 ₽/м²
Условия сделки
свободная продажа
Агентство недвижимости
ИНГРУПП ДЕВЕЛОПМЕНТ