Мы используем куки-файлы. Соглашение об использовании

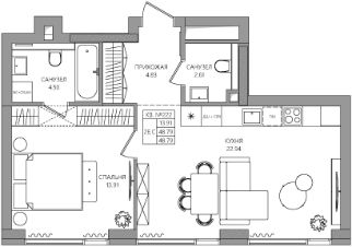
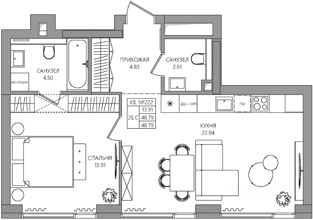
Продается 2-комн. квартира, 48,79 м²

Общая площадь48,79 м²
Жилая площадь13,9 м²
Этаж5 из 28
Год сдачи2030
ДомНе сдан
ОтделкаПредчистовая
Продаётся 2-комнатная квартира в строящемся доме (К2), срок сдачи: I-кв. 2030, общей площадью 48.79 кв.м., на 5 этаже. Новый жилой комплекс "МАНЕРЫ" от Специализированного застройщика "УНО" расположен по адресу: г. Пермь, по ул. шоссе Космонавтов.

О квартире

Тип жилья

Новостройка

Общая площадь

48,79 м²

Жилая площадь

13,9 м²

Высота потолков

2,7 м

Отделка

Предчистовая

О доме

Количество лифтов

2 пассажирских, 4 грузовых

Тип дома

Монолитный

Парковка

Подземная

Пандус

Есть

Понравилась квартира — узнайте о ней больше

Застройщик ответит на все вопросы

Отделка квартиры

Предчистовая — остаётся установить сантехнику, розетки, двери и навести красоту: поклеить обои и уложить на пол покрытие

Варианты отделки в ЖК

  • Чистовая
  • Предчистовая
  • Черновая
  • Без отделки
Похоже на то, что вы ищете?

Акции в ЖК «МАНЕРЫ»

Узнайте про персональные условия и дополнительные скидки при покупке квартиры у застройщика
Ипотечный калькулятор
  • Базовая
  • Семейная
  • ИТ-ипотека
  • 20%
  • 30%
  • 40%
  • 50%
лет
  • 10 лет
  • 20 лет
  • 30 лет
Загружаем предложения от застройщика и банков

Расположение

Корпус проверен наш.дом.рф
Обновлено 18 марта 2026
  • Нет в реестре проблемных объектов
  • Застройщик не банкрот
  • Есть эскроу счёт
  • Актуальные фото стройки

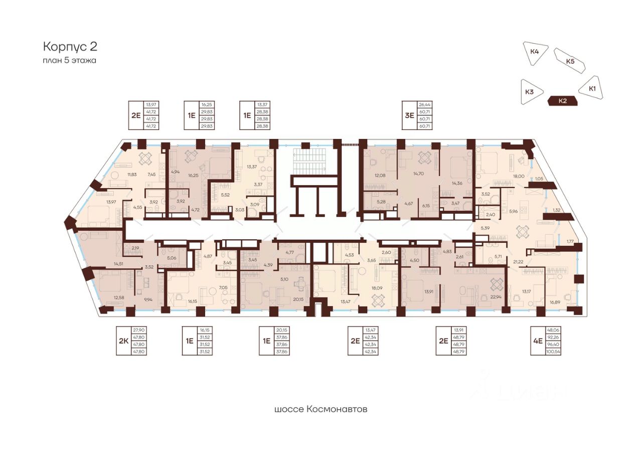
Ещё квартиры в жилом комплексе

103 квартиры в продаже · Сдача в 2030—2031
ЗастройщикИНГРУПП ДЕВЕЛОПМЕНТ
Год основания: 2006
Строится: 14 домов в 7 ЖК
11 144 000 ₽
Цена за метр
228 407 ₽/м²
Условия сделки
свободная продажа