














232 844 ₽/м²
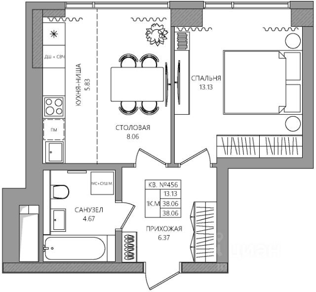
Эволюция — это квартал бизнес-класса в самом центре Перми на ул. Пушкина, 91. 5 мин. до Эспланады -Фонтан и "парящий" мост во дворе -Видовая терраса с шезлонгами на крыше дома -Детский активити-парк в помещении комплекса 1-комнатная квартира 491 Квартиры продаются с 2 видами отделки: 1. ОТДЕЛКА "ПРЕМЬЕР" В основе концепции отделки бизнес-класса Премьер создание качественной базы для реализации эффектных дизайнерских решений. Оцените современную нейтральную палитру оттенков, продуманную эргономику и отделочные материалы высокого качества: - Ламинат дуб даннинтон светлый, 32 класс, 8 мм - Виниловые обои под покраску, цвет светло-бежевый - Белые межкомнатные двери с фурнитурой и плинтусы в цвет - Керамическая плитка Kerama Marazzi и Italon для стен и пола в с/у, -Теплые полы и комплект санфаянса в с/у, 2. БЕЛАЯ ОТДЕЛКА - Металлические входные двери - Металлопластиковые окна - Трубы расположены в полу и не портят интерьер - Установлены современные радиаторы с регулировкой подачи тепла - Разводка электрики по всей квартире - Остекление лоджий и балконов - Выровненные полы цементно-песчаной стяжкой - Ровные стены и потолок - Установленные счетчики и электрощит - Коммуникации готовы к подключению. 5 МИН ДО ЭСПЛАНАДЫ Место в самом центре Ленинского района определяет высокий статус квартала: это исторически респектабельное место жительства для тех, кто ценит, что все лучшее — рядом: 500 м - обновлённая Эспланада; 50 м - школа 7 с углубленным изучением английского языка; новый корпус школы; 900 м - Пермская филармония, КДЦ; 600 м - Пермский государственный медицинский университет им. академика Е. А. Вагнера; 800 м - Пермский национальный исследовательский политехнический университет; 1200 м - реконструированная набережная реки Кама; 800 м - ТРК "Колизей", другие ТРЦ в пешей доступности; 200 м - частные и муниципальные дошкольные учреждения; 1000 м - Пермский академический Театр-Театр; 300 м - медицинские центры и государственные больницы. О КВАРТАЛЕ -Квартал бизнес-класса в центре -Двор-парк на стилобате: "парящий" мост внутри двора; сосны, злаковые тропы и цветники. -Смотровые площадки на крыше -Футуристичные холлы -Двухуровневый паркинг -Широкий выбор планировок ТЕХНИЧЕСКИЕ РЕШЕНИЯ Видеонаблюдение 24/7, включая подземный паркинг и лифты. Всегда с вами в смартфоне Управление автоматическими воротами и калитками через смартфон Бесключевой доступ во двор и в подъезд с помощью системы распознавания лиц Счетчики ресурсов с дистанционной передачей показаний Разводка систем интернета и TV в квартиры Система умягчения и очистки воды Датчики протечки КУПИТЬ КВАРТИРУ ПРОСТО — Онлайн-регистрация сделки. Все необходимые документы из дома, с отметкой о государственной регистрации, без визита в росреестр или МФЦ — Выбор банка-партнера застройщика — Принимаем государственные сертификаты (мат. капитал). Можно использовать в качестве первоначального взноса или как часть платежа по ипотеке. Застройщик ПМД. Проектная декларация на сайте наш.д



171 500 ₽/м²
Дом бизнес класса на Гастелло, 21 6 уровней безопасности: Закрытый двор без машин Огороженная территория Безопасное покрытие на детских площадках Видеонаблюдение на придомовой территории и в доме 24/7 Безбарьерная среда Консьерж Уникальные инженерные решения Горизонтальная разводка отопления Uponor, теплые полы в прихожей и санузлах Импортные лифты Радиаторы с термостатическими регуляторами Питьевой водопровод в каждой квартире - очистка воды до бутилированной питьевой Остекление окон 5-камерным ПВХ профилем с премиальной фурнитурой Собственный спортивный зал в доме - доступен только для жителей дома, без абонементов и посторонних людей. Его оборудуют кардио и силовыми тренажерами, зонами для групповых занятий, йоги или пилатеса. Тренироваться можно будет индивидуально или устраивать совместные занятия с соседями. Звукоизоляция Модернизированная конструкция пола дополнена звукоизоляционной плитой "Эковер стэп" Коммуникации вынесены в общий коридор, поэтому жителей не потревожит звук льющейся у соседей воды или другие неприятные шумы. Входные двери современного дизайна с дополнительным шумопоглощением. Кирпичные межквартирные стены Пермь, Индустриальный р-н, ул. Гастелло, 21 Дом бизнес класса на Гастелло, 21 отличается современной архитектурой с акцентом на просторный, выразительный двор. Лаконичные фасады развернуты друг к другу, формируя гармоничное и комфортное пространство. О доме: Дом переменной этажности: 8-9 этажей, 232 квартиры, газовая котельная, тёплый подземный паркинг. 46 видов планировок, мастер - спальни с гардеробной и ванной, лоджии с панорамным остеклением/террасы. Преимущества дома: Благоустройство Большой закрытый двор, где каждая деталь тщательно продумана. Концепция благоустройства объединяет динамику городской жизни и гармонию спокойного природного окружения. Придомовая территория закрыта от посторонних, оснащена системой видеонаблюдения, контролем доступа. Локация и инфраструктура Дом находится в самом начале Индустриального района - отсюда удобно и быстро добраться в любую часть города. Всего 10 минут на общественном транспорте — и вы в центре города с его ресторанами, торговыми галереями и набережной. Для прогулок и уединения — сад имени Миндовского всего в 10 минутах пешком, а для активного отдыха — Балатовский парк, до которого можно доехать на велосипеде за 15 минут. Преимущества покупки Надёжный застройщик Группа компаний "Альфа", 20 лет строим для Перми, более 30 возводимых жилых домов. Гибкие условия семейная ипотека, рассрочка, трейд-ин, приём сертификатов (маткапитал и др.). 100% оплата через эскроу-счета безопасность ваших средств.



189 000 ₽/м²
Дом бизнес класса на Гастелло, 21 6 уровней безопасности: Закрытый двор без машин Огороженная территория Безопасное покрытие на детских площадках Видеонаблюдение на придомовой территории и в доме 24/7 Безбарьерная среда Консьерж Уникальные инженерные решения Горизонтальная разводка отопления Uponor, теплые полы в прихожей и санузлах Импортные лифты Радиаторы с термостатическими регуляторами Питьевой водопровод в каждой квартире - очистка воды до бутилированной питьевой Остекление окон 5-камерным ПВХ профилем с премиальной фурнитурой Собственный спортивный зал в доме - доступен только для жителей дома, без абонементов и посторонних людей. Его оборудуют кардио и силовыми тренажерами, зонами для групповых занятий, йоги или пилатеса. Тренироваться можно будет индивидуально или устраивать совместные занятия с соседями. Звукоизоляция Модернизированная конструкция пола дополнена звукоизоляционной плитой "Эковер стэп" Коммуникации вынесены в общий коридор, поэтому жителей не потревожит звук льющейся у соседей воды или другие неприятные шумы. Входные двери современного дизайна с дополнительным шумопоглощением. Кирпичные межквартирные стены Пермь, Индустриальный р-н, ул. Гастелло, 21 Дом бизнес класса на Гастелло, 21 отличается современной архитектурой с акцентом на просторный, выразительный двор. Лаконичные фасады развернуты друг к другу, формируя гармоничное и комфортное пространство. О доме: Дом переменной этажности: 8-9 этажей, 232 квартиры, газовая котельная, тёплый подземный паркинг. 46 видов планировок, мастер - спальни с гардеробной и ванной, лоджии с панорамным остеклением/террасы. Преимущества дома: Благоустройство Большой закрытый двор, где каждая деталь тщательно продумана. Концепция благоустройства объединяет динамику городской жизни и гармонию спокойного природного окружения. Придомовая территория закрыта от посторонних, оснащена системой видеонаблюдения, контролем доступа. Локация и инфраструктура Дом находится в самом начале Индустриального района - отсюда удобно и быстро добраться в любую часть города. Всего 10 минут на общественном транспорте — и вы в центре города с его ресторанами, торговыми галереями и набережной. Для прогулок и уединения — сад имени Миндовского всего в 10 минутах пешком, а для активного отдыха — Балатовский парк, до которого можно доехать на велосипеде за 15 минут. Преимущества покупки Надёжный застройщик Группа компаний "Альфа", 20 лет строим для Перми, более 30 возводимых жилых домов. Гибкие условия семейная ипотека, рассрочка, трейд-ин, приём сертификатов (маткапитал и др.). 100% оплата через эскроу-счета безопасность ваших средств.



180 000 ₽/м²
Квартал 'Левченко' — это жилой комплекс в современном формате умной среды, созданный для нового поколения горожан, который легко адаптируется к их желаниям, нуждам и жизненным ситуациям, при этом остается верен себе. Для тех, кто видит большие возможности в современном мегаполисе, мы обеспечиваем максимум комфорта в квартале на ул. Левченко. Квартал расположен в самом начале Индустриального района. Развитая дорожная сеть делает эту локацию по настоящему уникальной: в любую точку города удобно добраться на автомобиле и общественном транспорте. Квартал 'Левченко' имеет сдержанную этажность со стороны трех улиц и только на магистральную улицу выходит архитектурной доминантой. Высотка со стороны улицы Карпинского выполняет роль пространственного ориентира, формирует выразительный силуэт жилого комплекса в городской панораме. Периметральная застройка квартала обеспечивает четкое разделение территории на частную и общественную. Формируется приватный двор внутри квартала и 'живые', эстетически выразительные и безопасные уличные пространства с большим количеством функций. Сквер имеет разнообразную инфраструктуру для отдыха, благодаря чему она не ограничивается двором. Сквер — место встреч, занятий спортом, игр и общественных мероприятий для подростков и взрослых, поэтому тут расположились городские гостиные, воркаут, амфитеатр и площадка для игр с мячом.



301 429 ₽/м²
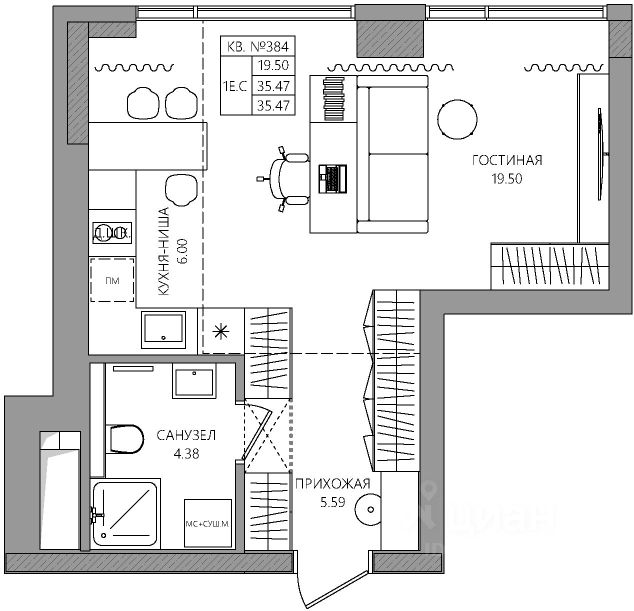
Четырёхкомнатная квартира евро формата в строящемся доме бизнес класса ЖК Сибирский квартал. Продажа от физического лица. основные характеристики: Отделка - предчистовая (стяжка на полу, стены оштукатуренны, разводка электрики от застройщика). Высота потолков - 3.15м. Высота окна - 2,85 м. Высота входной двери - 2.4 м. Над последним жилым этажом есть технический этаж. Есть возможность приобрести машиноместо и кладовку. Взрослый собственник, ограничений и обременений нет.



173 279 ₽/м²
Продается уютная светлая квартира, в новом доме Скворцы, который находится в шаговой доступности от центра города! С видом из окна на парк и на пермские закаты..в шаговой доступности бассейн БМ, стадион звезда, школа, садики, сетевые магазины. В квартире сделан ремонт от застройщика; виниловые обои,натяжной матовый потолок, на полу линолеум, в ванной плитка, установлены межкомнатные двери, хорошие входные двери, а так же установлены гардины и есть шторы. В квартире есть большой санузел, и самая фишка ! большая гардеробная! а так же экономия на коммунальных платежах за счёт своей газовой котельной на доме! и отдельный кран с питьевой водой , фильтр которой установлен в цоколе дома. Приглашаем на просмотр квартиры, помогу в проведении сделки и одобрении ипотеки! Код пользователя: 107350 Номер в базе: 6385114



422 475 ₽/м²
Видовые двухкомнатные апартаменты с кухней-нишей 40,83м2 МФК Окулова 14 от UDS. Бизнес-парк "Гоголь" Новый архитектурный код Перми. Место, где интеллект, эстетика и амбиции принимают форму. Расположенный в исторической части города, на первой линии Камы, "Гоголь" объединяет в себе энергию делового центра и спокойствие набережной. Апартаменты с панорамными видами на Каму и аллеи сада им. Гоголя — пространство для личной перезагрузки и вдохновения. Здесь можно позволить себе редкую роскошь — смотреть на реку и думать о будущем. Апартаменты полностью готовы к жизни: дизайнерская отделка, продуманные инженерные решения, климат-контроль, автоматические системы учета и доступа. На территории: зеленый двор с авторским ландшафтным дизайном, арт-объекты, сухой фонтан и прогулочные зоны. Преимущества для резидентов: • круглосуточное лобби отеля Hampton by Hilton • подземный паркинг с электрозарядками • отельный сервис 24/7 • ресторан локальной кухни TВ, вдохновленный культурой Пермского края • итальянский ресторан на 15 этаже с видами, от которых не хочется отводить взгляд • гастробистро TEHNIKUM от White Rabbit Family • СПА-комплекс с банями и бассейном • конференц-залы и пространства для встреч Второй этап проекта — две новые башни, где разместятся: • офисы от 30 м² до целого этажа • апартаменты бизнес-класса • фитнес-центр • зимний сад • терраса на крыше с панорамой Камы Бизнес-парк "Гоголь" — создавайте репутацию, начиная с адреса.



192 000 ₽/м²
Дом бизнес класса на Гастелло, 21 6 уровней безопасности: Закрытый двор без машин Огороженная территория Безопасное покрытие на детских площадках Видеонаблюдение на придомовой территории и в доме 24/7 Безбарьерная среда Консьерж Уникальные инженерные решения Горизонтальная разводка отопления Uponor, теплые полы в прихожей и санузлах Импортные лифты Радиаторы с термостатическими регуляторами Питьевой водопровод в каждой квартире - очистка воды до бутилированной питьевой Остекление окон 5-камерным ПВХ профилем с премиальной фурнитурой Собственный спортивный зал в доме - доступен только для жителей дома, без абонементов и посторонних людей. Его оборудуют кардио и силовыми тренажерами, зонами для групповых занятий, йоги или пилатеса. Тренироваться можно будет индивидуально или устраивать совместные занятия с соседями. Звукоизоляция Модернизированная конструкция пола дополнена звукоизоляционной плитой "Эковер стэп" Коммуникации вынесены в общий коридор, поэтому жителей не потревожит звук льющейся у соседей воды или другие неприятные шумы. Входные двери современного дизайна с дополнительным шумопоглощением. Кирпичные межквартирные стены Пермь, Индустриальный р-н, ул. Гастелло, 21 Дом бизнес класса на Гастелло, 21 отличается современной архитектурой с акцентом на просторный, выразительный двор. Лаконичные фасады развернуты друг к другу, формируя гармоничное и комфортное пространство. О доме: Дом переменной этажности: 8-9 этажей, 232 квартиры, газовая котельная, тёплый подземный паркинг. 46 видов планировок, мастер - спальни с гардеробной и ванной, лоджии с панорамным остеклением/террасы. Преимущества дома: Благоустройство Большой закрытый двор, где каждая деталь тщательно продумана. Концепция благоустройства объединяет динамику городской жизни и гармонию спокойного природного окружения. Придомовая территория закрыта от посторонних, оснащена системой видеонаблюдения, контролем доступа. Локация и инфраструктура Дом находится в самом начале Индустриального района - отсюда удобно и быстро добраться в любую часть города. Всего 10 минут на общественном транспорте — и вы в центре города с его ресторанами, торговыми галереями и набережной. Для прогулок и уединения — сад имени Миндовского всего в 10 минутах пешком, а для активного отдыха — Балатовский парк, до которого можно доехать на велосипеде за 15 минут. Преимущества покупки Надёжный застройщик Группа компаний "Альфа", 20 лет строим для Перми, более 30 возводимых жилых домов. Гибкие условия семейная ипотека, рассрочка, трейд-ин, приём сертификатов (маткапитал и др.). 100% оплата через эскроу-счета безопасность ваших средств.



165 500 ₽/м²
Дом бизнес класса на Гастелло, 21 6 уровней безопасности: Закрытый двор без машин Огороженная территория Безопасное покрытие на детских площадках Видеонаблюдение на придомовой территории и в доме 24/7 Безбарьерная среда Консьерж Уникальные инженерные решения Горизонтальная разводка отопления Uponor, теплые полы в прихожей и санузлах Импортные лифты Радиаторы с термостатическими регуляторами Питьевой водопровод в каждой квартире - очистка воды до бутилированной питьевой Остекление окон 5-камерным ПВХ профилем с премиальной фурнитурой Собственный спортивный зал в доме - доступен только для жителей дома, без абонементов и посторонних людей. Его оборудуют кардио и силовыми тренажерами, зонами для групповых занятий, йоги или пилатеса. Тренироваться можно будет индивидуально или устраивать совместные занятия с соседями. Звукоизоляция Модернизированная конструкция пола дополнена звукоизоляционной плитой "Эковер стэп" Коммуникации вынесены в общий коридор, поэтому жителей не потревожит звук льющейся у соседей воды или другие неприятные шумы. Входные двери современного дизайна с дополнительным шумопоглощением. Кирпичные межквартирные стены Пермь, Индустриальный р-н, ул. Гастелло, 21 Дом бизнес класса на Гастелло, 21 отличается современной архитектурой с акцентом на просторный, выразительный двор. Лаконичные фасады развернуты друг к другу, формируя гармоничное и комфортное пространство. О доме: Дом переменной этажности: 8-9 этажей, 232 квартиры, газовая котельная, тёплый подземный паркинг. 46 видов планировок, мастер - спальни с гардеробной и ванной, лоджии с панорамным остеклением/террасы. Преимущества дома: Благоустройство Большой закрытый двор, где каждая деталь тщательно продумана. Концепция благоустройства объединяет динамику городской жизни и гармонию спокойного природного окружения. Придомовая территория закрыта от посторонних, оснащена системой видеонаблюдения, контролем доступа. Локация и инфраструктура Дом находится в самом начале Индустриального района - отсюда удобно и быстро добраться в любую часть города. Всего 10 минут на общественном транспорте — и вы в центре города с его ресторанами, торговыми галереями и набережной. Для прогулок и уединения — сад имени Миндовского всего в 10 минутах пешком, а для активного отдыха — Балатовский парк, до которого можно доехать на велосипеде за 15 минут. Преимущества покупки Надёжный застройщик Группа компаний "Альфа", 20 лет строим для Перми, более 30 возводимых жилых домов. Гибкие условия семейная ипотека, рассрочка, трейд-ин, приём сертификатов (маткапитал и др.). 100% оплата через эскроу-счета безопасность ваших средств.



302 483 ₽/м²
Продается 1- комнатная квартира 119 Ипотека для всех от 5, 4% без удорожания* "Дом на Советской" это не просто дом, это произведение искусства, воплощенное в реальность. Сдача дома в этом году! Дом находится в самом центре городской жизни! Рядом располагаются главные точки притяжения города городская Набережная, Эспланада, Театр Оперы и Балеты, также в шаговой доступности: рестораны, театры, музеи, торговые, медицинские и спортивные центры, детские сады, топовые школы и университеты. Из центра Перми вы быстро доедете в любой района города (Свердловский, Дзержинский, Индустриальный, Мотовилихинский, Кировский, Орджоникидзевский) Дом выполнен в стиле "неоконструктивизм". Фасады из камня, керамогранита и бетона отражают высокий статус жильцов и бережно хранят их заслуженный комфорт. Жизнь в "Доме на Советской" это не просто проживание, это образ жизни с персональным подходом ко всем вашим потребностям. Умные решения для вашего комфорта: • Двухуровневый паркинг с лифтами на этаж • Паркинг для электромобилей • Усилитель сотовой связи в паркинге и лифтах • Фильтр очистки воды на вводе в дом • Шикарный центральный холл с высотой потолков 5 метров, отдельной зоной ожидания, переговорной и лобби-баром • Круглосуточная служба заботы для решения важных бытовых вопросов жильцов • Усиленная звукоизоляция в квартире благодаря внешним и межквартирным стенам из кирпича, а также дополнительному слою шумоизоляции в стяжке пола Тотальная безопасность: • Полностью ограждённая территория без сквозных проходов внутрь • Видеонаблюдение 24/7 по периметру, во дворе, паркинге, лобби и лифтах • Мониторинг центр профессионалы следят за порядком и реагируют на вызовы жильцов 24/7 Оазис в вашем доме: • Парадная площадь для проведения совместных праздников • Kids-зона с оригинальными игровым городком • Лаунж-зона с медитативными креслами-коконами • Дизайнерское ландшафтное озеленение В доме представлены уникальные форматы квартир с: • мастер-спальней и прачечными • террасой • двухуровневые и пентхаусы • свободной планировки. Успейте забронировать свою квартиру до повышения цен! _________________________________________________ ___________________________________________ *Реклама. Рекламодатель ИП Крепак М. Л. ИНН 590584369633. ООО СЗ "Аркада". ИНН 5905296699. Проектная декларация на сайте наш. дом. рф. ПСК 14, 672% 28, 091%. Ставка 5, 4 % годовых действует 5 месяцев с даты заключения кредитного договора при условии комплексного страхования, подтверждении дохода и занятости и первом взносе от 20, 1%. Ставка 5, 4% обеспечивается за счет получения застройщиком проектного финансирования с использованием эскроу-счетов. По истечении 5 месяцев процентная ставка в рублях РФ составит 19, 50% годовых в рамках базовой программы кредитования. Сумма кредита — до 100 млн руб. Валюта кредита — рубли. Срок кредита — от 20 до 30 лет. Условия действительны с 01. 05. 2026 г. до даты изменения банком условий кредитования. Банк ВТБ (ПАО). Генеральная лицензия Банка России 1000.



291 069 ₽/м²
Продаётся 1-комнатная квартира в строящемся доме (Дом 1), срок сдачи: IV-кв. 2030, общей площадью 45.2 кв.м., на 19 этаже. Новый жилой комплекс "Дом высокого статуса Жемчужина Камы" от группы компаний "YUNIKA" расположен по адресу: г. Пермь, по ул. Толмачёва.


240 401 ₽/м²
Продаётся 1-комнатная квартира в строящемся доме (Дом 1), срок сдачи: IV-кв. 2030, общей площадью 52.5 кв.м., на 3 этаже. Новый жилой комплекс "Дом высокого статуса Жемчужина Камы" от группы компаний "YUNIKA" расположен по адресу: г. Пермь, по ул. Толмачёва.



191 830 ₽/м²
Передаем ключи в 2025 году! Дом на Карпинского новый проект UDS в индустриальном районе. ДНК - современный центр жизни для активных профессионалов, влюбленных в ритм города. Комфортная среда для свободы, саморазвития и реализации. Стильные фасады из кирпича, переменная этажность и архитектурная подсветка задают тон всеми микрорайону. Приватный двор с учетом игр и отдыха разных поколений, дизайнерские холлы, с колясочными и гостевыми санузлами дают ощущение комфорта и безопасности на всей территории комплекса.



214 195 ₽/м²
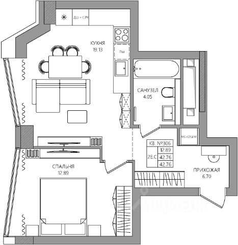
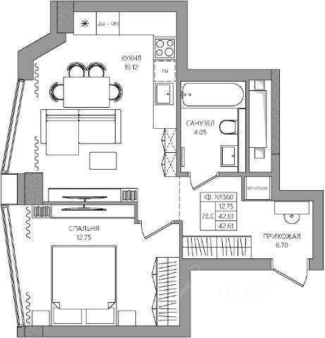
Пространство для комфортной жизни. Кухня-гостиная 18 м² — уютное сердце квартиры для отдыха и приёма гостей; Несколько ниш для хранения в коридоре — всё под рукой, без визуального шума; Просторная ванная 4,5 м² — комфорт и свобода движений; Большие окна с низким подоконником (всего 40 см от пола) наполняют интерьер светом и создают ощущение простора; Потолки 2,7 м — ощущение воздуха и архитектурного объёма.



210 076 ₽/м²
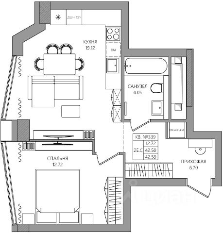
Пространство для комфортной жизни Кухня-гостиная 18 м² — уютное сердце квартиры для отдыха и приёма гостей; Несколько ниш для хранения в коридоре — всё под рукой, без визуального шума; Просторная ванная 5,5 м² — комфорт и свобода движений; Большие окна с низким подоконником (всего 40 см от пола) наполняют интерьер светом и создают ощущение простора; Потолки 2,7 м — ощущение воздуха и архитектурного объёма.



207 723 ₽/м²
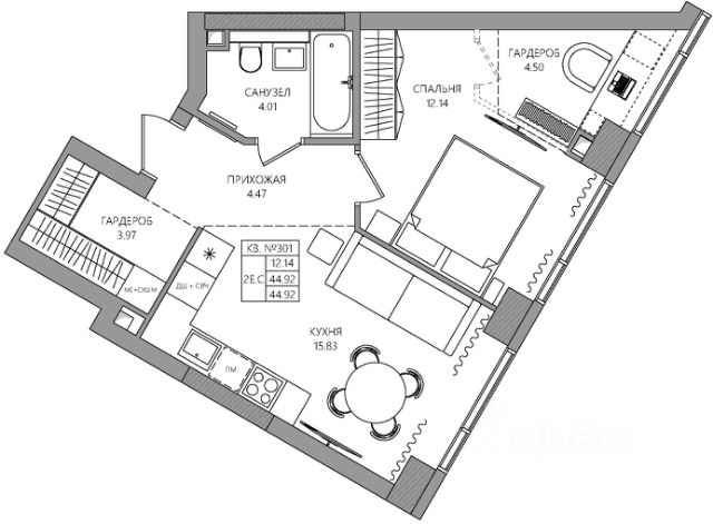
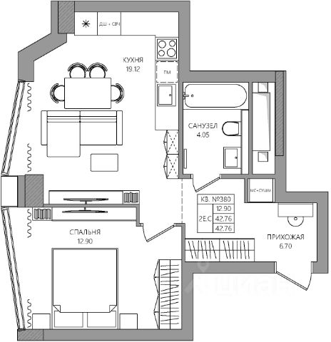
Свет, пространство и удобная планировка. Окна выходят на две стороны, наполняют квартиру светом в течение всего дня и создают ощущение воздуха; Кухня-гостиная 21 м² — простор для кулинарных экспериментов, уютных ужинов и приёма гостей; Две изолированные жилые комнаты — свобода для зонирования и личного пространства; Окна с низким подоконником (всего 40 см от пола) наполняют квартиру светом и делают вид частью интерьера; Потолки 2,7 м — визуальная лёгкость и больше простора в каждом помещении.


228 060 ₽/м²
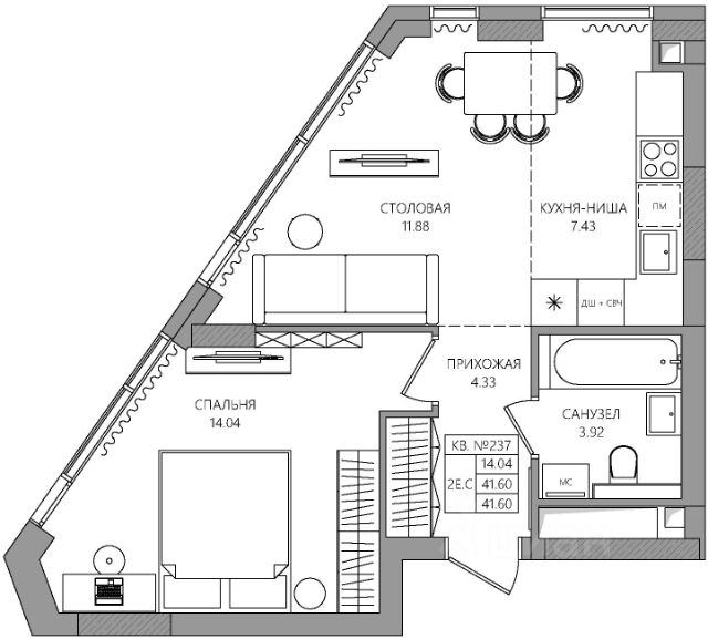
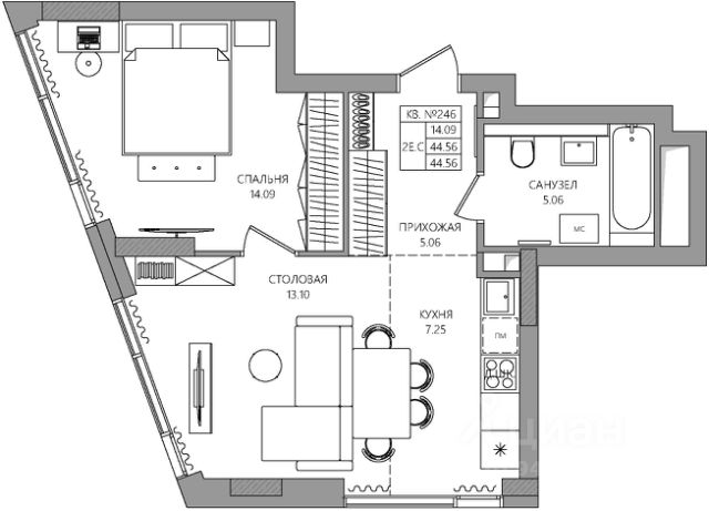
Продаётся 2-комнатная квартира в сданном доме (Окулова, 20), срок сдачи: I-кв. 2026, общей площадью 59.29 кв.м., на 22 этаже. Новый жилой квартал PRIME (Прайм) от Строительной группы "Развитие" расположен по адресу г. пермь, ул. Окулова, 20, в шаговой доступности от Городской эспланады и набережной реки Кама.



249 894 ₽/м²
Продается 2- комнатная квартира 159 Ипотека для всех от 5, 4% без удорожания* "Дом на Советской" это не просто дом, это произведение искусства, воплощенное в реальность. Сдача дома в этом году! Дом находится в самом центре городской жизни! Рядом располагаются главные точки притяжения города городская Набережная, Эспланада, Театр Оперы и Балеты, также в шаговой доступности: рестораны, театры, музеи, торговые, медицинские и спортивные центры, детские сады, топовые школы и университеты. Из центра Перми вы быстро доедете в любой района города (Свердловский, Дзержинский, Индустриальный, Мотовилихинский, Кировский, Орджоникидзевский) Дом выполнен в стиле "неоконструктивизм". Фасады из камня, керамогранита и бетона отражают высокий статус жильцов и бережно хранят их заслуженный комфорт. Жизнь в "Доме на Советской" это не просто проживание, это образ жизни с персональным подходом ко всем вашим потребностям. Умные решения для вашего комфорта: • Двухуровневый паркинг с лифтами на этаж • Паркинг для электромобилей • Усилитель сотовой связи в паркинге и лифтах • Фильтр очистки воды на вводе в дом • Шикарный центральный холл с высотой потолков 5 метров, отдельной зоной ожидания, переговорной и лобби-баром • Круглосуточная служба заботы для решения важных бытовых вопросов жильцов • Усиленная звукоизоляция в квартире благодаря внешним и межквартирным стенам из кирпича, а также дополнительному слою шумоизоляции в стяжке пола Тотальная безопасность: • Полностью ограждённая территория без сквозных проходов внутрь • Видеонаблюдение 24/7 по периметру, во дворе, паркинге, лобби и лифтах • Мониторинг центр профессионалы следят за порядком и реагируют на вызовы жильцов 24/7 Оазис в вашем доме: • Парадная площадь для проведения совместных праздников • Kids-зона с оригинальными игровым городком • Лаунж-зона с медитативными креслами-коконами • Дизайнерское ландшафтное озеленение В доме представлены уникальные форматы квартир с: • мастер-спальней и прачечными • террасой • двухуровневые и пентхаусы • свободной планировки. Успейте забронировать свою квартиру до повышения цен! _________________________________________________ ___________________________________________ *Реклама. Рекламодатель ИП Крепак М. Л. ИНН 590584369633. ООО СЗ "Аркада". ИНН 5905296699. Проектная декларация на сайте наш. дом. рф. ПСК 14, 672% 28, 091%. Ставка 5, 4 % годовых действует 5 месяцев с даты заключения кредитного договора при условии комплексного страхования, подтверждении дохода и занятости и первом взносе от 20, 1%. Ставка 5, 4% обеспечивается за счет получения застройщиком проектного финансирования с использованием эскроу-счетов. По истечении 5 месяцев процентная ставка в рублях РФ составит 19, 50% годовых в рамках базовой программы кредитования. Сумма кредита — до 100 млн руб. Валюта кредита — рубли. Срок кредита — от 20 до 30 лет. Условия действительны с 01. 05. 2026 г. до даты изменения банком условий кредитования. Банк ВТБ (ПАО). Генеральная лицензия Банка России 1000.






173 264 ₽/м²
Продажа просторной студии в жилом доме "Латте" в микрорайоне Новоплоский — это жизнь в комфорте и гармонии Квартира с полной качественной отделкой на 4 этаже. Панорамное остекление, значит ,в квартире будет много света. Вам больше не придется прокладывать длинные маршруты. Все для удобного быта, качественного образования и полноценного отдыха находится рядом: - Ученикам доступны сильные школы: 122 с языковым уклоном, 91, 109 и Европейская школа. - Для малышей открыты двери детских садов 371, 23 и 396. - За продуктами удобно зайти в сетевые магазины "Пятерочка" и "Магнит", а за покупками — в торговые центры "Аврора", "Мегаполис", "Стахановский" и "Седьмое небо". - В шаговой доступности расположены медицинские центры, аптеки и стоматологические кабинеты. - В десяти минутах ходьбы вас ждут уютные кафе, рестораны, пекарни и кофейни. - От остановки "ул. Левченко" можно доехать до центра города всего за 30 минут. Сдача дома - 2026 год. Один взрослый собственник. Без обременений и долгов. Код пользователя: 8188 Номер в базе: 12640061



193 194 ₽/м²
"Элерон" — это дом, где каждый день начинается с ощущения полёта. Здесь свобода и лёгкость наполняют каждое пространство, создавая атмосферу, в которой идеи обретают крылья, а моменты — значимость. Дом словно парит над ритмом города, соединяя в себе динамику современности и спокойствие уединения. Концепция "Элерона" вдохновлена самим полётом — это жизнь на высоте, где всё построено для гармонии и движения вперёд. В доме всё продумано до мельчайших деталей, словно каждый метр — это часть точного маршрута. Стилобатная секция напоминает о крыльях самолёта, расправленных для нового взлёта. Семейные встречи в лаунж-зоне, работа в коворкинге и отдых во дворе здесь переплетаются в единый поток, где каждый шаг — это взвешенное решение, а каждая минута прожита осознанно. "Элерон" — ваш личный аэродром, готовый к новым горизонтам



211 761 ₽/м²
Эволюция — это квартал бизнес-класса в самом центре Перми на ул. Пушкина, 91. 5 мин. до Эспланады -Фонтан и "парящий" мост во дворе -Видовая терраса с шезлонгами на крыше дома -Детский активити-парк в помещении комплекса 2-комнатная квартира 553 Квартиры продаются с 2 видами отделки: 1. ОТДЕЛКА "ПРЕМЬЕР" В основе концепции отделки бизнес-класса Премьер создание качественной базы для реализации эффектных дизайнерских решений. Оцените современную нейтральную палитру оттенков, продуманную эргономику и отделочные материалы высокого качества: - Ламинат дуб даннинтон светлый, 32 класс, 8 мм - Виниловые обои под покраску, цвет светло-бежевый - Белые межкомнатные двери с фурнитурой и плинтусы в цвет - Керамическая плитка Kerama Marazzi и Italon для стен и пола в с/у, -Теплые полы и комплект санфаянса в с/у, 2. БЕЛАЯ ОТДЕЛКА - Металлические входные двери - Металлопластиковые окна - Трубы расположены в полу и не портят интерьер - Установлены современные радиаторы с регулировкой подачи тепла - Разводка электрики по всей квартире - Остекление лоджий и балконов - Выровненные полы цементно-песчаной стяжкой - Ровные стены и потолок - Установленные счетчики и электрощит - Коммуникации готовы к подключению. 5 МИН ДО ЭСПЛАНАДЫ Место в самом центре Ленинского района определяет высокий статус квартала: это исторически респектабельное место жительства для тех, кто ценит, что все лучшее — рядом: 500 м - обновлённая Эспланада; 50 м - школа 7 с углубленным изучением английского языка; новый корпус школы; 900 м - Пермская филармония, КДЦ; 600 м - Пермский государственный медицинский университет им. академика Е. А. Вагнера; 800 м - Пермский национальный исследовательский политехнический университет; 1200 м - реконструированная набережная реки Кама; 800 м - ТРК "Колизей", другие ТРЦ в пешей доступности; 200 м - частные и муниципальные дошкольные учреждения; 1000 м - Пермский академический Театр-Театр; 300 м - медицинские центры и государственные больницы. О КВАРТАЛЕ -Квартал бизнес-класса в центре -Двор-парк на стилобате: "парящий" мост внутри двора; сосны, злаковые тропы и цветники. -Смотровые площадки на крыше -Футуристичные холлы -Двухуровневый паркинг -Широкий выбор планировок ТЕХНИЧЕСКИЕ РЕШЕНИЯ Видеонаблюдение 24/7, включая подземный паркинг и лифты. Всегда с вами в смартфоне Управление автоматическими воротами и калитками через смартфон Бесключевой доступ во двор и в подъезд с помощью системы распознавания лиц Счетчики ресурсов с дистанционной передачей показаний Разводка систем интернета и TV в квартиры Система умягчения и очистки воды Датчики протечки КУПИТЬ КВАРТИРУ ПРОСТО — Онлайн-регистрация сделки. Все необходимые документы из дома, с отметкой о государственной регистрации, без визита в росреестр или МФЦ — Выбор банка-партнера застройщика — Принимаем государственные сертификаты (мат. капитал). Можно использовать в качестве первоначального взноса или как часть платежа по ипотеке. Застройщик ПМД. Проектная декларация на сайте наш.д



189 500 ₽/м²
Дом бизнес класса на Гастелло, 21 6 уровней безопасности: Закрытый двор без машин Огороженная территория Безопасное покрытие на детских площадках Видеонаблюдение на придомовой территории и в доме 24/7 Безбарьерная среда Консьерж Уникальные инженерные решения Горизонтальная разводка отопления Uponor, теплые полы в прихожей и санузлах Импортные лифты Радиаторы с термостатическими регуляторами Питьевой водопровод в каждой квартире - очистка воды до бутилированной питьевой Остекление окон 5-камерным ПВХ профилем с премиальной фурнитурой Собственный спортивный зал в доме - доступен только для жителей дома, без абонементов и посторонних людей. Его оборудуют кардио и силовыми тренажерами, зонами для групповых занятий, йоги или пилатеса. Тренироваться можно будет индивидуально или устраивать совместные занятия с соседями. Звукоизоляция Модернизированная конструкция пола дополнена звукоизоляционной плитой "Эковер стэп" Коммуникации вынесены в общий коридор, поэтому жителей не потревожит звук льющейся у соседей воды или другие неприятные шумы. Входные двери современного дизайна с дополнительным шумопоглощением. Кирпичные межквартирные стены Пермь, Индустриальный р-н, ул. Гастелло, 21 Дом бизнес класса на Гастелло, 21 отличается современной архитектурой с акцентом на просторный, выразительный двор. Лаконичные фасады развернуты друг к другу, формируя гармоничное и комфортное пространство. О доме: Дом переменной этажности: 8-9 этажей, 232 квартиры, газовая котельная, тёплый подземный паркинг. 46 видов планировок, мастер - спальни с гардеробной и ванной, лоджии с панорамным остеклением/террасы. Преимущества дома: Благоустройство Большой закрытый двор, где каждая деталь тщательно продумана. Концепция благоустройства объединяет динамику городской жизни и гармонию спокойного природного окружения. Придомовая территория закрыта от посторонних, оснащена системой видеонаблюдения, контролем доступа. Локация и инфраструктура Дом находится в самом начале Индустриального района - отсюда удобно и быстро добраться в любую часть города. Всего 10 минут на общественном транспорте — и вы в центре города с его ресторанами, торговыми галереями и набережной. Для прогулок и уединения — сад имени Миндовского всего в 10 минутах пешком, а для активного отдыха — Балатовский парк, до которого можно доехать на велосипеде за 15 минут. Преимущества покупки Надёжный застройщик Группа компаний "Альфа", 20 лет строим для Перми, более 30 возводимых жилых домов. Гибкие условия семейная ипотека, рассрочка, трейд-ин, приём сертификатов (маткапитал и др.). 100% оплата через эскроу-счета безопасность ваших средств.



253 304 ₽/м²
Продается 2- комнатная квартира 12 Ипотека для всех от 5, 4% без удорожания* "Дом на Советской" это не просто дом, это произведение искусства, воплощенное в реальность. Сдача дома в этом году! Дом находится в самом центре городской жизни! Рядом располагаются главные точки притяжения города городская Набережная, Эспланада, Театр Оперы и Балеты, также в шаговой доступности: рестораны, театры, музеи, торговые, медицинские и спортивные центры, детские сады, топовые школы и университеты. Из центра Перми вы быстро доедете в любой района города (Свердловский, Дзержинский, Индустриальный, Мотовилихинский, Кировский, Орджоникидзевский) Дом выполнен в стиле "неоконструктивизм". Фасады из камня, керамогранита и бетона отражают высокий статус жильцов и бережно хранят их заслуженный комфорт. Жизнь в "Доме на Советской" это не просто проживание, это образ жизни с персональным подходом ко всем вашим потребностям. Умные решения для вашего комфорта: • Двухуровневый паркинг с лифтами на этаж • Паркинг для электромобилей • Усилитель сотовой связи в паркинге и лифтах • Фильтр очистки воды на вводе в дом • Шикарный центральный холл с высотой потолков 5 метров, отдельной зоной ожидания, переговорной и лобби-баром • Круглосуточная служба заботы для решения важных бытовых вопросов жильцов • Усиленная звукоизоляция в квартире благодаря внешним и межквартирным стенам из кирпича, а также дополнительному слою шумоизоляции в стяжке пола Тотальная безопасность: • Полностью ограждённая территория без сквозных проходов внутрь • Видеонаблюдение 24/7 по периметру, во дворе, паркинге, лобби и лифтах • Мониторинг центр профессионалы следят за порядком и реагируют на вызовы жильцов 24/7 Оазис в вашем доме: • Парадная площадь для проведения совместных праздников • Kids-зона с оригинальными игровым городком • Лаунж-зона с медитативными креслами-коконами • Дизайнерское ландшафтное озеленение В доме представлены уникальные форматы квартир с: • мастер-спальней и прачечными • террасой • двухуровневые и пентхаусы • свободной планировки. Успейте забронировать свою квартиру до повышения цен! _________________________________________________ ___________________________________________ *Реклама. Рекламодатель ИП Крепак М. Л. ИНН 590584369633. ООО СЗ "Аркада". ИНН 5905296699. Проектная декларация на сайте наш. дом. рф. ПСК 14, 672% 28, 091%. Ставка 5, 4 % годовых действует 5 месяцев с даты заключения кредитного договора при условии комплексного страхования, подтверждении дохода и занятости и первом взносе от 20, 1%. Ставка 5, 4% обеспечивается за счет получения застройщиком проектного финансирования с использованием эскроу-счетов. По истечении 5 месяцев процентная ставка в рублях РФ составит 19, 50% годовых в рамках базовой программы кредитования. Сумма кредита — до 100 млн руб. Валюта кредита — рубли. Срок кредита — от 20 до 30 лет. Условия действительны с 01. 05. 2026 г. до даты изменения банком условий кредитования. Банк ВТБ (ПАО). Генеральная лицензия Банка России 1000.
| 🔷 Средняя цена продажи: | 9,8 млн ₽ |
| 🔷 Средняя цена за м2: | 237 тыс. ₽/м² |
| 🔷 Минимальная стоимость: | 9,1 млн ₽ |
| 🔷 Самый дорогой объект: | 10,5 млн ₽ |