Первичная продажа



Только на Циан
сдача ГК: 3 кв. 2028 года
6 374 400 ₽
192 000 ₽/м²
Дом бизнес класса на Гастелло, 21
6 уровней безопасности:
Закрытый двор без машин
Огороженная территория
Безопасное покрытие на детских площадках
Видеонаблюдение на придомовой территории и в доме 24/7
Безбарьерная среда
Консьерж
Уникальные инженерные решения
Горизонтальная разводка отопления Uponor, теплые полы в прихожей и санузлах
Импортные лифты
Радиаторы с термостатическими регуляторами
Питьевой водопровод в каждой квартире - очистка воды до бутилированной питьевой
Остекление окон 5-камерным ПВХ профилем с премиальной фурнитурой
Собственный спортивный зал в доме - доступен только для жителей дома, без абонементов и посторонних людей. Его оборудуют кардио и силовыми тренажерами, зонами для групповых занятий, йоги или пилатеса. Тренироваться можно будет индивидуально или устраивать совместные занятия с соседями.
Звукоизоляция
Модернизированная конструкция пола дополнена звукоизоляционной плитой "Эковер стэп"
Коммуникации вынесены в общий коридор, поэтому жителей не потревожит звук льющейся у соседей воды или другие неприятные шумы.
Входные двери современного дизайна с дополнительным шумопоглощением.
Кирпичные межквартирные стены
Пермь, Индустриальный р-н, ул. Гастелло, 21
Дом бизнес класса на Гастелло, 21 отличается современной архитектурой с акцентом на просторный, выразительный двор. Лаконичные фасады развернуты друг к другу, формируя гармоничное и комфортное пространство.
О доме:
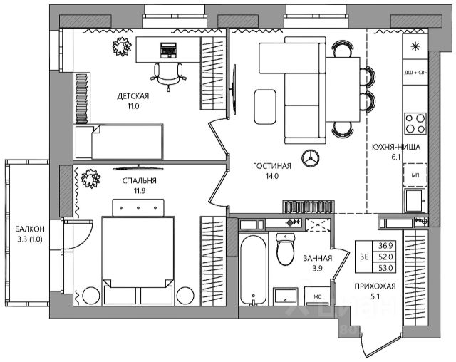
Дом переменной этажности: 8-9 этажей, 232 квартиры, газовая котельная, тёплый подземный паркинг. 46 видов планировок, мастер - спальни с гардеробной и ванной, лоджии с панорамным остеклением/террасы.
Преимущества дома:
Благоустройство
Большой закрытый двор, где каждая деталь тщательно продумана. Концепция благоустройства объединяет динамику городской жизни и гармонию спокойного природного окружения.
Придомовая территория закрыта от посторонних, оснащена системой видеонаблюдения, контролем доступа.
Локация и инфраструктура
Дом находится в самом начале Индустриального района - отсюда удобно и быстро добраться в любую часть города.
Всего 10 минут на общественном транспорте — и вы в центре города с его ресторанами, торговыми галереями и набережной.
Для прогулок и уединения — сад имени Миндовского всего в 10 минутах пешком, а для активного отдыха — Балатовский парк, до которого можно доехать на велосипеде за 15 минут.
Преимущества покупки
Надёжный застройщик Группа компаний "Альфа", 20 лет строим для Перми, более 30 возводимых жилых домов.
Гибкие условия семейная ипотека, рассрочка, трейд-ин, приём сертификатов (маткапитал и др.).
100% оплата через эскроу-счета безопасность ваших средств.





















































































