


126 318 ₽/м²
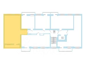
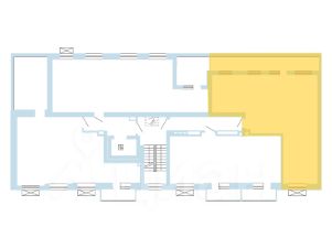
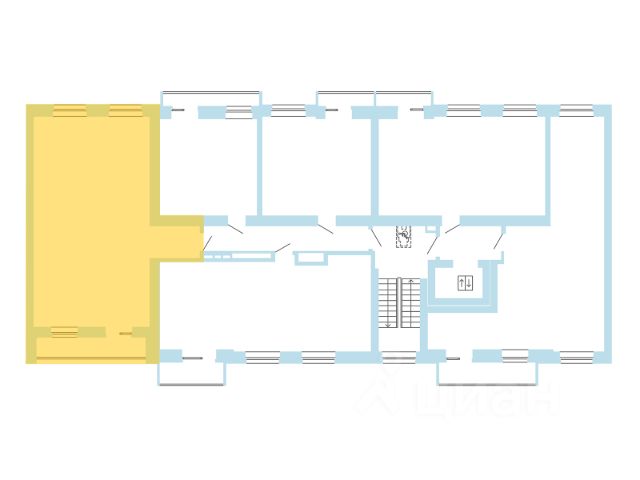
Продается 2-комн. квартира с предчистовой отделкой в ЖК "Куйбышева 143" на 9 этаже. Общая площадь: 81.54 кв.м., жилая: 24.9 кв.м., площадь просторной кухни-гостиной: 29.4 кв.м. Комнаты изолированные, все окна выходят на одну сторону. В квартире один балкон и одна лоджия, один совмещенный и один раздельный санузел. Высота потолков 2.7 м. Дом монолитный, двухподъездный, высотой 9 этажей. Квартира находится во 2-й секции в корпусе 1. На этаже 11 квартир. В подъезде 1 пассажирский и 1 грузовой лифт. Начало строительства - 2 квартал 2026 года. Окончание строительства - 2 квартал 2029 года. Оформление сделки по договору долевого участия. Квартира с кухней-гостиной и двумя спальнями в доме "Куйбышева 143". Особенности планировки: балкон, второй санузел, потолки 3 м и выше, разнесённые спальни, терраса на крыше. квартиры в нашей базе: КБВ01-Ж2.9.3. "Куйбышева 143" представляет собой П-образный девятиэтажный дом из двух секций, которые формируют компактный квартал. Каркас — из монолитного железобетона. Срок эксплуатации такой конструкции — не менее ста лет. Фасад дома строг, симметричен и уравновешен. В его отделке мы используем штукатурку трёх созвучных цветов. Контрастные рамки окон создают ритм, горизонтальные линии — ощущение устойчивости и порядка. В проекте "Куйбышева 143" мы создаём среду, которой раньше в микрорайоне Крохалёва не существовало: — закрытый двор, но без высоких заборов; — территория полностью свободна от автомобилей; — в подъездах прозрачные входные двери; — на въезде в паркинг системы распознавания номеров; — видеонаблюдение по периметру дома и во дворе, в подъезде 1 этажа, в лифтовых кабинах и в паркинге; — домофония с удалённым доступом: дверь можно открыть со смартфона, вход только по приглашению жителя; — многоуровневое освещение, выделяющее фасад дома и превращающее двор в комфортное пространство для вечерних прогулок и тренировок; — отсутствие входов и лавочек со стороны улицы, что исключает шум по ночам. Двор напоминает классический сад. Чтобы добиться этого эффекта, ландшафтные архитекторы высадят уличные растения ровными рядами, формируя строгую и симметричную композицию двора. Для детей мы предусмотрели игровые зоны: карусели для малышей, карусель-колосок, горку, песочницу, меловую доску и переговорные трубы. Все оборудование устанавливаем на амортизирующем покрытии, чтобы игра была безопасной. Для тех, кто выбирает спокойный отдых или работу на свежем воздухе, мы обустроим уютные "зелёные комнаты" с настилами из досок. Часть из них расположим в центре двора, чтобы родители могли следить за детьми, не отвлекаясь от дел. Другие — в стороне от активных зон. У любителей активного отдыха в распоряжении будет теннисный стол, классический турник и брусья для силовых тренировок. #2TlizF Продается 2-комнатная квартира 80 м2 в Перми.

























































































