Первичная продажа



С отделкой
сдача ГК: 3 кв. 2026 года
9 680 160 ₽
180 600 ₽/м²
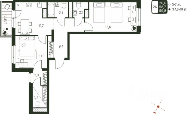
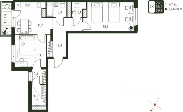
Продаётся 2-комнатная квартира в строящемся доме (Серебристая, 3), срок сдачи: III-кв. 2026, общей площадью 53.6 кв.м., на 3 этаже. Теплые кварталы "Погода" — это новый грандиозный проект от создателя Спортивного микрорайона "Ива", федерального застройщика "Девелопмент-Юг" .























































































































