59 625 ₽/м²
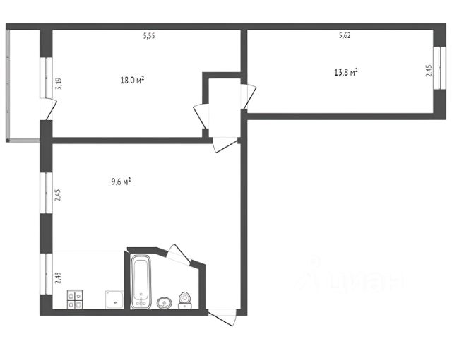
Отличная 3-комнатная квартира на первом этаже в районе с развитой инфраструктурой Предлагаем вашему вниманию прекрасную 3-комнатную квартиру общей площадью 58,7 кв.м, расположенную на первом этаже. Это замечательный вариант для тех, кто ценит комфорт, удобство и близость к важным объектам. Ключевые преимущества квартиры: -Общая площадь 58,7 кв.м - Изолированные комнаты - Развитая инфраструктура района: рядом магазины, школы, поликлиники, остановки общественного транспорта - Первый этаж для удобного доступа Квартира подходит как для семейного проживания, так и для коммерческих целей. Изолированные комнаты обеспечивают необходимую приватность, а удобное расположение на первом этаже упрощает доступ.Развитая инфраструктура района позволит вам наслаждаться всеми преимуществами комфортной городской жизни. Не упустите возможность приобрести эту замечательную 3-комнатную квартиру! Свяжитесь с нами прямо сейчас, чтобы записаться на просмотр. Расмотрим обмен на 2 комнатную квартиру 1-2 этаж , улучшенной планировки. Продается 3-комнатная квартира до 3,5 млн. рублей в Лысьве.

















































































