


146 995 ₽/м²
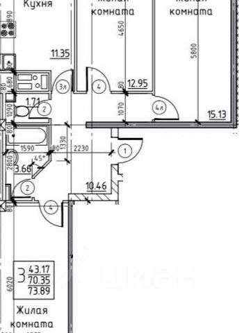
Продается 3- комнатная квартира 45 Кладовая в подарок! * Скидка 2% для семей с детьми ** Сдача дома в этом году! Нет программ без первоначального взноса! ПВ от 20% ЖК Утро расположен в Свердловском районе Перми на ул. Ижевская, 38. Дома находятся в непосредственной близости к центру города. Всего в 10 минутах от Комсомольской площади, а выехать на крупные транспортные артерии города ул. Героев Хасана и ул. Старцева можно за считанные минуты. Вокруг уже есть все, что нужно вам и вашей семье, чтобы жить с комфортом! Новая школа через дорогу, супермаркет в соседнем доме, заправка в 100 метрах не нужно ждать, пока вокруг появится инфраструктура. Чтобы жить комфортно и с удовольствием, в ЖК Утро есть: • Дизайнерские холлы; • Собственная газовая котельная; • Крытая парковка на придомовой территории; • Видеонаблюдение и консьерж 24/7; • Доступ в дом через приложение или по магнитному ключу; • Отдельное помещение для колясок и велосипедов; • Мультидвор; • 10-и ступенчатая контурная изоляция и повышенная теплоизоляция. Квартиры в ЖК Утро сдаются с современной отделкой готовой для жизни. Не тратьте деньги и время на ремонт. Заезжайте сразу как получите ключи! Отделка включает в себя: • Металлическая сейф-дверь • Межкомнатные двери из экошпона • Виниловые обои • Ламинат • Радиаторы с терморегулятором • Плитка в санузле в мокрой зоне • Установлена вся сантехника В квартирах формата "студия" установлен поддон. В квартирах других форматов установлена акриловая ванна. Не упустите возможность стать обладателем этой уникальной квартиры и начинать каждое утро с улыбкой на лице. Узнайте больше о ЖК Утро прямо сейчас, напишите нам в Сообщения или позвоните. Ваш персональный менеджер сделает всё необходимое, чтобы процесс приобретения квартиры и получения ключей стал лёгким и приятным. Успейте забронировать свою квартиру, цены растут ежедневно! Срок сдачи: 4 кв. 2026 г. ______________________________________ * Реклама. Застройщик ООО СЗ "ПЗТИ" ИНН 5905024600. Проектная декларация на сайте наш дом рф. В акции участвуют квартиры 2К, 3Е и 3К формата. Количество квартир, участвующих в акции ограничено. Подробные условия уточняйте в офисе продаж застройщика. Рекламодатель может изменить сроки и условия акции. Не является публичной офертой.** Скидка 2% предоставляется для семей, у которых 1 и более детей. Клиенту необходимо предоставить свидетельство о рождении детей. Дети должны быть возрастом до 18 лет. Скидка не суммируется с другими акциями и предложениями. Продается 3-комнатная квартира в новостройке в районе Свердловский в городе Пермь.















































































































































