


151 953 ₽/м²
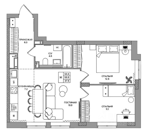
ДОМ БОЛЬШИХ ПЕРЕМЕН! Современный многоквартирный дом комфорт-класса в микрорайоне Парковый. Адрес дома: Проспект Парковый, 24. *Изображения отделки квартир и мест общего пользования, холлов, а также изображения придомовой территории являются компьютерной моделью и могут отличаться от фактического исполнения. Изображенные мебель, бытовая техника, предметы интерьера в состав и стоимость отделки не входят. Одно из ключевых преимуществ дома — его расположение в ЦЕНТРЕ Микрорайона Парковый. Удобный, зелёный и спокойный семейный район с развитой инфраструктурой и отличной транспортной доступностью. В пешей доступности находятся школы, детские сады, магазины и медицинские учреждения. Здесь легко добраться в любую часть города благодаря выездам на объездные магистрали. Современная архитектура Технология: монолитный каркас. Урбанистический стиль, яркий, статный, с акцентами современного дизайна. Сквозные входы, как со стороны двора, так и в коммерческие помещения. Круглый год в окружении природы Дом расположен всего в 100 метрах от Черняевского леса, и недалеко от набережной реки Мулянка. Прогулки, отдых и занятия спортом на свежем воздухе. В 5 минутах ходьбы от дома расположен городской парк культуры и отдыха "Балатово". Уютные семейные квартиры В доме 2 секции: А и Б. Всего 238 семейных квартир площадью от 41.8 м² до 84.5 м². В квартирах предусмотрена повышенная звуко- и теплоизоляция, установлены современные инженерные коммуникации. Используются звукоизолирующие строительные материалы, а также шумозащитные окна с вентиляцией Airbox. 2 варианта отделки: Предчистовая - "под ремонт" "Под ключ" - за дополнительную оплату. Высота потолков: 1 этаж-4,62 м., 2-18 этаж-2,72м. Входные двери — металлические утеплённые. Современные технические системы. В доме установлены индивидуальные счётчики с GSM-модулями. Домофоны и системы видеонаблюдения по периметру здания, интегрированы с мобильным приложением в смартфоне. ДОМ БОЛЬШИХ ПЕРЕМЕН В ЗАБОТЕ О ВАС Закрытый, охраняемый двор - безопасность для детей и спокойствие для родителей. Современные детские и спортивные площадки, а также комфортные зоны отдыха с ландшафтным озеленением. Единая входная группа, без пандуса— это особенно удобно для родителей с колясками и пожилых людей . Современные холлы и модельная библиотека Холлы оформлены в индивидуальном дизайне. Внутри — уникальное пространство с модельной библиотекой и уютной lounge-зоной для отдыха. Застройщик: ООО "СЗ "Дом Учителя", группа "Дипломат". Срок реализации: 2 квартал 2025 г. - 4 квартал 2027 г. 3-комнатная квартира с отделкой в районе Дзержинский в городе Пермь.























































































































































