


195 000 ₽/м²
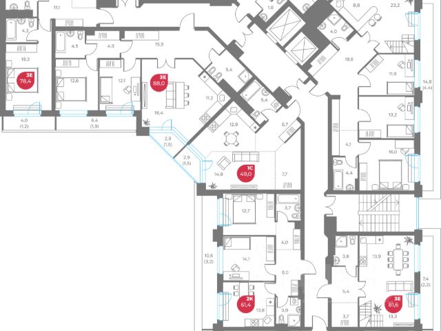
Премиальный дом КАМА на Советской, 16а "КАМА" - дом с достойным окружением: несколько минут до набережной, Оперного театра, музеев, престижных школ, парков, топовых ресторанов и бутиков. Выбирая премиальный дом "КАМА", не придется соглашаться на меньшее. КВАРТИРОГРАФИЯ • Квартиры с террасами • Двухуровневые квартиры с камином • Wow-панорамы на реку Кама • Мастер-спальни, гардеробные, лаундри • Высота потолков до 3.3 метра ИНФРАСТРУКТУРА ДОМА • Сервис уровня отеля 5* • Собственный wellness и spa • Гостиная и клуб для резидентов дома • Кабинет семейного врача • Детcкие игровые в доме и на воздухе • Семейный ресторан • Камерный двор-сад • 3-уровневый подземный паркинг с местами XXL, автомойкой и зарядными станциями для электрокаров АЛЬФА-СТАНДАРТЫ комфортного и современного жилья: 5 УРОВНЕЙ ШУМОИЗОЛЯЦИИ • Многослойные межквартирные стены с дополнительным слоем звукопоглощающих материалов; • Многослойный "тихий" пол Эковер степ; • Стальные входные двери с дополнительным шумопоглощающим слоем; • Шумозащитные окна из 5-камерного профиля; • Коммуникации в 80% квартир вынесены в МОПы, а в квартирах применяются шумопоглощающие трубы; СОВРЕМЕННЫЕ ИНЖЕНЕРНЫЕ СИСТЕМЫ • Горизонтальная система отопления Uponor; • Автономная газовая котельная; • Импортные бесшумные лифты премиум-класса ; • Система приточной вентиляции; • Внутрипольные конвекторы; • Отдельные вентканалы в каждой квартире; • Питьевой водопровод в каждой квартире и очистка воды до уровня бутилированной. БЕЗОПАСНОСТЬ • Огороженная территория • Двор без машин на стилобате; • Видеонаблюдение 24/7; • Бесключевой доступ для жителей дома; • Консьерж-сервис. ОТДЕЛКА Квартиры сдаются в предчистовой отделке white box. • Установлены индивидуальные приборы учета электроэнергии, горячей и холодной воды, отопления • Производится подводка труб холодной и горячей воды, питьевого водопровода и канализации • Устройство тёплого пола в санузле и прихожей • Выполнена стяжка пола с шумоизоляцией • Смонтирована система отопления, установлены радиаторы со скрытым подключением "от стены" • Стены выровнены и оштукатурены • Установлены оконные конструкции, откосы закрыты ПВХпанелями, установлены подоконники ПРОЕКТ ОПЫТНОГО ДЕВЕЛОПЕРА Группа компаний Альфа возводит в Перми дома комфорт- и бизнес-класса. За 17 лет построила 26 домов и выработала уникальные Альфа стандарты строительства: "тихий" пол и 6 дополнительных уровней шумоизоляции, отдельный водопровод для питьевой воды, очищенной до уровня бутилированной. Репутация застройщика подтверждена наивысшим баллом в рейтинге застройщиков Пермского края по показателям скорости и качества строительства. 3-комнатная квартира на улице Советская в городе Пермь.




































































































