


140 191 ₽/м²
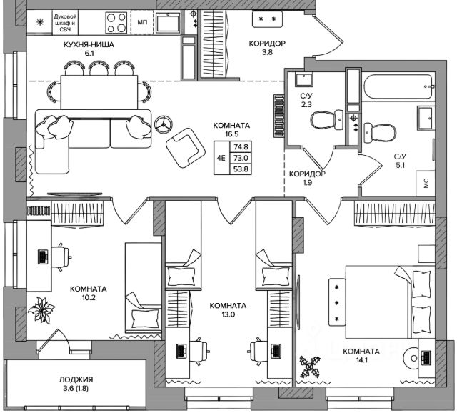
Жилой дом QUATRO от ИНГРУПП - все преимущества городской жизни в зеленом микрорайоне, рядом с лесом и рекой. В QUATRO вас ждут: Безопасность: современные технологии строительства защитят приватность и спокойствие жильцов, а интеллектуальные системы "умного дома" обеспечат безопасность квартир и общих пространств. Гармоничная жизнь на любой вкус: можно гулять и делать покупки, заниматься спортом или наслаждаться тихим отдыхом на свежем воздухе. В продуманном благоустроенном пространстве безопасно и интересно детям и взрослым. Всё необходимое в шаговой доступности: не нужно тратить время, чтобы отвезти ребенка в сад или школу, сделать закупки на всю семью, посетить поликлинику или салон красоты. Чистый воздух и живописная природа: благоприятная экология помогает сохранить здоровье, а природа дарит разнообразие возможностей для активного и спокойного отдыха. Во дворе дома QUATRO большая зона озеленения и множеством уникальных растений. QUATRO — это современное настоящее и перспективное будущее: В доме два вида отделки: ИНСМАРТ и White box. Высота потолков в квартирах — от 2,72 м до 2,9 м. Увеличенные окна, простор и свет. В каждом лобби-холле: ресепшн-зона консьержа, место для велосипедов, большая колясочная комната, 124 кладовые. Самый большой двор ИНГРУПП в Кондратово - детская площадка для всех возрастов, зона для коворкинга, уличные гостиные, сцена, ворк-аут зона, разнообразное озеленение и арт-объекты во дворе! Во дворе есть розетки для гаджетов Система умного доступа и видеонаблюдение Просторный наземный паркинг Выбирайте удобный способ оплаты: 100% оплата с гарантией. Счета-эскроу Льготная ипотека от ведущих банков Военная ипотека. Специальные условия для участников боевых действий и скидки на квартиры Трейд-ин. Поможем с продажей своей квартиры бесплатно! Рассрочка от девелопера на выгодных условиях Материнский капитал Окончание строительства — I квартал 2027 года.










































































