Напоминаем, Дома можно приобрести с ПВ 20.1 % под 6 %.
Продаются Новые Дома (Коттедж) с земельным участком (2024 года постройки), по адресу пос. Пермяково.
Дома можно купить по программе Семейная ипотека 6%.
Возможен обмен на вашу недвижимость.
Продажа Дома напрямую от застройщика.
Можем построить дом на вашем или нашем участке.
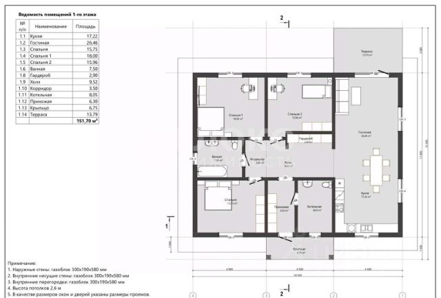
Параметры дома и земли:
- площадь 117 кв.м (можно дополнительно установить крыльцо, гараж или увеличить площадь дома)
- земли 6.2 соток
- участок правильной формы
О доме:
- фундамент ленточный + фбс (проект фундамента сделан в соответствии с геологией)
- перекрытия железобетонные марки ПK
- стены из газобетонных блоков Теплит 630х300х250 прочностью Д500 (производство г.Екатеринбург)
- стены утеплены 50 мм Ursа Терра 34 РМ, облицованы кирпичом
- кровля утепленная 200 мм (металлочерепица)
- водосточная система белая (металлопрофиль)
- окна пластиковые, пятикамерный профиль с двухкамерными стеклопакетами
- двери входные металлические
- система вентиляции естественная, выводится на кровлю
- отмостка, крыльцо (монолитная ступенька)
- на полу первого этаж, стяжка из пескобетона марки В15
- на полу второго этажа, гипсовый наливной пол
- штукатурка стен, гипсовая основных несущих стен
- перегородки, из пазогребневого гипсового блока, толщина 80 мм (не требуют штукатурки)
Выполнена чистовая отделка
Коммуникации:
Все коммуникации выполнены и заведены в дом (вода и канализация, электричество 15 квт)
- Отопление, на момент продажи в доме смонтирована система отопления от электрического котла, электрокотел NОVIЕN
* на первом этаже, теплый пол (сшитый полиэтилен) - 6 контуров
* на втором этаже, стальные радиаторы - 4 штуки
- Вода скважина, проложен греющий кабель, труба заведена в дом (без разводки)
- Канализация септик, смонтировано (3 железобетонных кольца), установлена крышка и люк, канализационная труба заведена в дом (разводка отсутствует)
- Электричество, ввод в дом 380 В, мощность 15 кВт, смонтирован распределительный ящик, выполнена базовая разводка под: розетки, выключатели, электрокотел, электролиту
- по поселку проводят центральную воду
- поселок газифицирован (в ближайшее время газопровод проведут по всем улицам)
О собственнике:
- собственник индивидуальный предприниматель, что позволяет оформить покупку или строительство дома по господдержке, семейная Ипотека 6%
- по готовым домам, возможен обмен на вашу недвижимость
- продажа домов напрямую от застройщика
Инфраструктура:
- поселок активно застраивается
- остановка в 350 метрах
Преимущества дома:
- современные материалы высокого качества
- экономичное и эффективное отопление
Звоните и записывайтесь на просмотр в удобное для вас время!
_________________________________
Наше объявление можно найти по словам: купить готовый дом, загородный дом, дом в ипотеку, дом по госпрограмме, дом по господдержке, дом по семейной, дом от застройщика, дом с земельным участком, строительство домов, дом в Березниках, дом в лесу, дом с газовым отоплением, кирпичный дом, дом под ключ, дом с отделкой, готовый дом, дом в Усолье, купить коттедж.
id:5514. Коттедж, кол во спален - 4..