Первичная продажа



2 акции
С отделкой
сдача ГК: 4 кв. 2027 года
5 525 000 ₽
155 197 ₽/м²
PORTA21 там, где создается сообщество
Этот дом — как современная гавань, где встречаются семьи, друзья и соседи. Это место, где формируются традиции, а общие пространства наполняются голосами детей и светом дружеских встреч.
Прямо в вашем доме — торговая галерея, где каждый день начинается с маленького удовольствия. Утренний кофе или необходимые повседневные покупки — всё это на расстоянии одного шага.
Подземный паркинг
Продуманное решение для современных жителей. Здесь предусмотрены станции зарядки для электромобилей, пункт подкачки шин и усилители сотовой связи. Каждая деталь пространства отражает заботу о вашем времени.
Просторный зонированный двор на стилобате
Место для отдыха, общения и активного досуга. Зонированные пространства позволяют каждому найти своё место: от тихих уголков для размышлений до детских площадок для активных игр.
Терраса на крыше
Ваш личный оазис для отдыха. Две уникальные зоны:
рабочая с минималистичными лавками, встроенными зарядками и столами для работы
лаунж зона с видом на Каму среди цветников и искусственных туй.
ул. Батумская, 21
22 этажа в 1 секции и 13 этажей во 2 секции
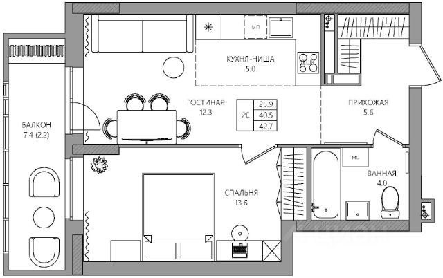
Квартиры от 26,6 до 75,9 кв.м
348 квартир
Высота потолков 2,72 м
Окончание строительства дома — 4 квартал 2027 года


























































































