


127 200 ₽/м²
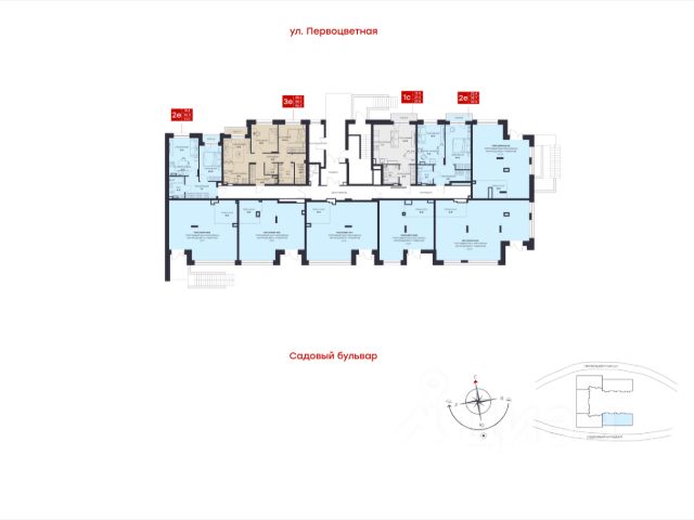
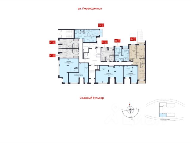
Миниполис Култаево Парк — камерный дом для семейной жизни Жилой комплекс в с. Култаево. 4 этажа, всего 199 квартир — малоэтажный дом для тех, кто хочет жить ближе к природе, ценит тишину, комфорт и своё пространство. Спокойная архитектура, зелёный двор и камерная атмосфера частного семейного места. Сдача — 4 квартал 2027. Ипотека от 3,5% Бесшумный дом Дополнительная шумоизоляция — соседей не слышно. Горизонтальная разводка отопления — можно регулировать тепло в каждой комнате. Трубы с технологией шумоподавления. Всего 199 квартир — просторно и свободно, без ощущения муравейника. Двор без машин — безопасность для детей Закрытый двор — только для жителей. Видеонаблюдение по периметру. IP-домофония с управлением со смартфона. Дети гуляют спокойно, машины не мешают. Просторные и светлые квартиры Высота потолков от 2,7 м. Светло, воздушно, комфортно. Функциональные планировки — каждый метр работает. Стильные входные группы Прозрачные входные группы и безбарьерная среда. Стильное лобби с колясочной и лапомойкой. Приятно возвращаться домой. Коммерческие помещения На первых этажах — магазины, аптеки, кафе. Всё необходимое — под домом. Безопасность и комфорт Закрытая территория — только для жителей. Усиленная шумоизоляция от фасада до внутренних стен. Качественные материалы — строим строго по ГОСТам. Инфраструктура рядом Детский сад — в шаговой доступности. Супермаркет, аптека, пункты выдачи — рядом. Спортивный клуб — в пешей доступности. Остановка — в 5 минутах от дома. Новая современная школа — в 10 минутах. До Перми — 20 минут на автомобиле. А ещё рядом — настоящая природа, которая не 'в презентации', а прямо за окном. Условия покупки Ипотека от 3,5% Скидки до 5% за быстрый выход на сделку и 100% оплату Скидка 3% для участников СВО и сотрудников предприятий Рассрочка от застройщика Материнский капитал принимаем Трейд-ин — поможем продать старую квартиру Почему 'Ракета' Строим по ГОСТам, без экономии. Эскроу-счета — ваши деньги под защитой. Ставка на качество среды, а не на количество квартир. Тишина, природа и город под рукой. Напишите в чат или нажмите 'Позвонить' — подберём квартиру, которая подойдёт именно вам. Приезжайте смотреть — атмосфера передаётся только лично. Застройщик ООО 'Специализированный застройщик - Миниполис Култаево Парк'. Проектная декларация на сайте наш.дом.рф. Внешний вид здания и благоустройство могут отличаться от визуализации.
































































































