











151 000 ₽/м²
Преимущества квартиры в ЖК "Курья-Park": * ДОМ СДАН, ипотека 6%! * Высота потолков 3-13 этаж - 2,7 м, 14-21 этаж - 3 м. * Эргономичные и свободные планировки без несущих стен * Лучевая разводка отопления с подогревом пола в части помещений * Повышенная шумоизоляция межэтажных и межквартирных перегородок * Максимально светлые пространства за счет увеличенных оконных проемов * Прекрасные видовые характеристики с любой стороны - Лес, Река, Храм, Город! * В квартирах установлены полотенца-сушители, корзины под кондиционеры, проведена электрика Преимущества ЖК "Курья-Парк": * Единственный высотный дом в микрорайоне Курья * Бесплатная и вместительная парковка напротив дома и рядом * Газовая котельная (всегда горячая вода и низкие коммунальные) * Работают четыре высокоскоростных, грузопассажирских лифта * Несколько этажей выкуплено успешными специалистами IT сферы * Планировки квартир начинаются от 47 м2, что определяет соседство. * На 1-м этаже: консьерж, видеонаблюдение, колясочная, не жилые помещения, планируемые под торговлю. * На 2-м этаже: не жилые помещения, планируемые под спортзал, медицину, косметологию, офисы и др. * На 3-м этаже: жилые помещения с просторными верандами и видом на сосновый бор. * Подходы к дому оборудованы пандусами для мало подвижных групп, а также специальным лифтом на второй этаж. * Для жильцов и гостей ЖК "курья-Парк" оборудованы места отдыха прямо на берегу реки "Кама" - современная детская площадка, березовая роща с лавочками, качели для малышей и волейбольная площадка! Преимущества Локации: * Экологичность в максимальной близости от центра * Для детей, проживающих в ЖК "Курья-Парк" работает детский сад 404 и средняя школа 32 * Один из самых престижных районов города Перми, который активно развивается - рядом уже построен ЖК "Сосновый", сдается первая очередь ЖК "Причал", проектируется клубный загородный поселок на 180 коттеджей с детским садом, ресторанами, пирсом для катеров и мн. др. ЗАПИСЫВАЙТЕСЬ НА ЭКСКУРСИЮ - УСПЕВАЙТЕ ВОСПОЛЬЗОВАТЬСЯ СКИДКОЙ ОТ 500.000 р! Помощь с получением ипотеки и продажей вашего жилья! ID объекта в нашей базе: 700












205 983 ₽/м²
Цена указана за квартиру в предчистовой (белой) отделке. Действуют скидки до 15%: Ипотечные программы (перв. взнос - от 20,1%): - семейная ипотека 6%, - IT-ипотека Рассрочка от застройщика: перв. взнос от 20%, до 18.12.2026 Выгодный обмен вашей старой квартиры на новую сo скидкой. Скидка участникам CВO и их семьям 2%. Скидка 1% за каждого ребенка до 18 лет (на кв. 2К, 3Е, 3К, 4Е) Скидка 1% при повторной покупке. Скидки за рекомендацию "Приведи друга" Скидка при одновременной покупке квартиры и кладовой. Базовая ипотека (перв. взнос - от 20,1%): 13,9% на весь срок. 9,9% на 2 года. Семейная ипотека (перв. взнос - от 20,1%): ставка от 3,5% Уникальный жилой квартал комфорт-класса в Камской долине, рядом с ТРК Спешиlоvе. В окружении соснового леса, в пяти минутах от эспланады. Внутри жилого квартала будет вся необходимая инфраструктура для жизни и отдыха: собственный детский сад на 370 мест, благоустроенный сквер 2,3 га, прогулочный бульвар для встреч, кафе, магазины и полезные сервисы на первых этажах жилых домов. Район Камской долины получил огромный импульс развития: в будущем здесь появится большой студенческий кампус, спортивно-оздоровительный центр, стадион, школа. Ведётся строительство третьего моста через Каму. Выбирайте район, который в будущем станет новой точкой притяжения Перми.






250 193 ₽/м²
Цена указана за квартиру в предчистовой (белой) отделке. Действуют скидки до 15%: Ипотечные программы (перв. взнос - от 20,1%): - семейная ипотека 6%, - IT-ипотека Рассрочка от застройщика: перв. взнос от 20%, до 18.12.2026 Выгодный обмен вашей старой квартиры на новую сo скидкой. Скидка участникам CВO и их семьям 2%. Скидка 1% за каждого ребенка до 18 лет (на кв. 2К, 3Е, 3К, 4Е) Скидка 1% при повторной покупке. Скидки за рекомендацию "Приведи друга". Скидка при одновременной покупке квартиры и кладовой. Базовая ипотека (перв. взнос - от 20,1%): 13,9% на весь срок. 9,9% на 2 года. Семейная ипотека (перв. взнос - от 20,1%): ставка от 3,5% Уникальный жилой квартал комфорт-класса в Камской долине, рядом с ТРК Спешиlоvе. В окружении соснового леса, в пяти минутах от эспланады. Внутри жилого квартала будет вся необходимая инфраструктура для жизни и отдыха: собственный детский сад на 370 мест, благоустроенный сквер 2,3 га, прогулочный бульвар для встреч, кафе, магазины и полезные сервисы на первых этажах жилых домов. Район Камской долины получил огромный импульс развития: в будущем здесь появится большой студенческий кампус, спортивно-оздоровительный центр, стадион, школа. Ведётся строительство третьего моста через Каму. Выбирайте район, который в будущем станет новой точкой притяжения Перми.



321 429 ₽/м²
квартира с ремонтом и мебелью. Малоквартирный, малоэтажный умный дом. ЖК Верн Приятная огороженная территория, вход в подъезды с ул Пермская и с ул Клименко. Свой уютный двор с площадками для детей и прогулочными аллеями на стилобате, качественная терраса на самом высоком этаже дома с оборудованной обеденной зоной и кухней . Абсолютно новая квартира с выполненным с качественно дизайнерским проектом, современные формы и дорогие материалы. Один из лучших видов в компоексе- на сквер им.Татищева. Вся инфраструктура рядом). Комплектность квартиры практически полная и соответствует проекту. Вся мебель и бытовая техника ( кроме стиральной машины и телевизоров) находятся в квартире и входят в цену продажи. Все просмотры по договоренности.



110 987 ₽/м²
Номер объекта: 714518. Квартира идеально подходит для тех, кто ценит комфорт и уютное проживание. Светлая и просторная, она обеспечит вам все необходимые условия для комфортного проживания. Наличие двух комнат позволит разделить пространство на спальню и гостиную, создавая уютные зоны для отдыха и работы. Кухня площадью 10 кв.м. оборудована всем необходимым для приготовления пищи и уютного обеда. Квартира находится на 4 этаже 5-этажного дома, что обеспечивает отличную теплоизоляцию и удобство в пользовании. Сейчас в квартире стандартный ремонт, что дает вам возможность с легкостью воплотить в жизнь свои дизайнерские идеи. Этот вариант идеально подойдет для семей с детьми, молодых пар, студентов, а также для инвестиций в недвижимость. Недалеко от дома расположены школы, детские сады, медицинские учреждения, театры и различные магазины, что делает месторасположение квартиры удобным для жизни. Если вы планируете воспользоваться ипотекой или материнским капиталом, то этот вариант также подойдет для вас. Не упустите возможность стать счастливым обладателем уютной и удобной квартиры по отличной цене! Покупая эту квартиру, вы приобретаете не просто кусочек недвижимости, а свое собственное уютное гнездышко, где вас ждут тепло и комфорт. Звоните прямо сейчас, и наши менеджеры ответят на все ваши вопросы и помогут организовать просмотр квартиры. Не упустите возможность стать счастливым обладателем этого уникального предложения!



140 936 ₽/м²
В продаже отличная квартира - студия со свежим, качественным ремонтом в 5ти минутах от центра города! Заменена проводка, стеклопакеты, натяжной потолок, ламинат, коммуникации, проведена вытяжка, установлена надёжная, металлическая входная дверь с зеркалом в полный рост! Выделена кухонная зона, куда установлен новый, встроенный кухонный гарнитур с варочной поверхностью и подстветкой, а слева от него оборудовано место для холодильника и сам холодильник, который остаётся. Также у кухонного окна глубокий подоконник, который можно использовать как рабочую зону. Санузел отделан кафелем. В прихожей оборудовано место для стиральной машины со сливом и подачей воды, куда она уже установлена. Центральная канализация! Остаётся всё, что вы видите на фото, а именно: кухонный гарнитур, варочная панель, сантехника, холодильник, стиральная машина, шторы, тюль. Всё абсолютно новое с чеками и на гарантии. Очень чистый подъезд! Есть два пассажирских и один грузовой лифт. На первом этаже дежурит консьерж! Огороженная территория. Отличный вариант как для сдачи в аренду, так и для жилья! Также в наличии есть аналогичные объекты в данном доме со 2го по 10ый этаж! Мы реализовали уже более 370 аналогичных объектов в нашем городе, отвечаем за качество, дорожим репутацией и даём гарантию! Один взрослый собственник, без ограничений и обременений права! В шаговой доступности: площадь дружбы, высшая школа экономики, магазин "Пятёрочка", "Магнит", "Лента", детские сады, школы, поликлиники, различные сетевые магазины, торговые центры, остановки общественного транспорта (в минуте от дома), в общем все прелести жизни рядом с центром города! Звоните, отвечу на все вопросы и покажу в удобное для вас время!



120 690 ₽/м²
В продаже отличные апартаменты со свежим, качественным ремонтом в 5ти минутах от центра города! Заменена проводка, стеклопакеты, натяжной потолок, ламинат, коммуникации, проведена вытяжка, установлена надёжная, металлическая входная дверь с зеркалом в полный рост! Выделена кухонная зона, куда установлен новый, встроенный кухонный гарнитур с варочной поверхностью и подстветкой, а слева от него оборудовано место для холодильника и сам холодильник, который остаётся. Санузел отделан кафелем, под раковиной оборудовано место для стиральной машины со сливом и подачей воды, куда она уже установлена. Остаётся всё, что вы видите на фото, а именно: кухонный гарнитур, варочная панель, сантехника, холодильник, стиральная машина, шторы, тюль. Всё абсолютно новое с чеками и на гарантии. Очень чистый подъезд! Есть два пассажирских и один грузовой лифт. На первом этаже дежурит консьерж! Огороженная территория. Отличный вариант как для сдачи в аренду, так и для жилья! Также в наличии есть аналогичные объекты в данном доме со 2го по 10ый этаж! Мы реализовали уже более 370 аналогичных объектов в нашем городе, отвечаем за качество, дорожим репутацией и даём гарантию! Один взрослый собственник, без ограничений и обременений права! В шаговой доступности: площадь дружбы, высшая школа экономики, магазин "Пятёрочка", "Магнит", "Лента", детские сады, школы, поликлиники, различные сетевые магазины, торговые центры, остановки общественного транспорта (в минуте от дома), в общем все прелести жизни рядом с центром города! Звоните, отвечу на все вопросы и покажу в удобное для вас время!



95 070 ₽/м²
Продается уютная трехкомнатная квартира . Общая площадь — 56.8 кв. м, жилая — 41 кв. м, кухня — 8.9 кв. м. В квартире сделан косметический ремонт, поэтому можно сразу заселяться и жить с комфортом. Район с развитой инфраструктурой: рядом находятся школы, детские сады, клиники и магазины, что делает проживание комфортным и удобным. Хорошая транспортная доступность позволяет быстро добраться до любой точки города. Квартира свободна от обременений, подходит для покупки в ипотеку. Все документы готовы к сделке. Это отличный вариант для семейного проживания. Звоните и записывайтесь на просмотр, чтобы оценить все преимущества этой квартиры лично!



106 918 ₽/м²
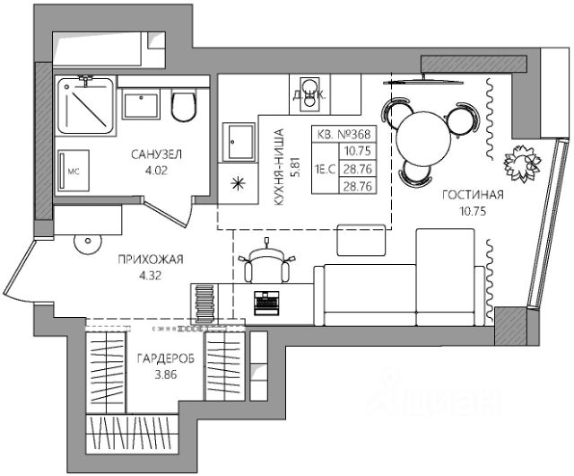
В продаже большая 1комнатная квартира с гардеробом на 4 этаже в ЖК Курья-парк. ДОМ СДАН! Общая площадь 47,7 кв.м. В прихожей гардероб 1,5 кв.м. Гостиная правильной прямоугольной формы 20 кв.м. имеет панорамное окно во всю стену. Кухня 13 кв.м. выходит на просторную лоджию 3,5 кв.м. О доме: Жилой комплекс Курья Парк находится в микрорайоне Верхняя Курья в окружении лесного массива, это единственная высотка в локации. Из окон квартир открываются потрясающие виды на живописную Каму, город, золотые купола Мужского монастыря, бескрайний сосновый бор. На верхнем уровне — обособленная зона с двухуровневыми пентхаусами и выходом на собственные террасы и веранды. На 3 этаже уникальные квартиры с террасами. Придомовая территория благоустроена на берегу Камы на собственном земельном участке: детские, спортивные площадки, площадки для отдыха взрослых. От дома до пляжа всего 300 метров по собственной дороге (для автомобилей и пешеходов). Вся необходимая для комфортной жизни инфраструктура уже сформирована: рядом есть школа, детские сады, поликлиника, супермаркеты, аптека, перинатальный центр и Институт сердца, ТЦ Спешилов. А до центра Перми всего 10 минут. Рядом с домом остановка общественного транспорта. Через дорогу от дома располагается Закамский бор — особо охраняемая территория общей площадью 1 633 га. В доме всего 156 квартир, все квартиры большие и просторные. Все квартиры сдаются с предчистовой белой отделкой (white box), установлена входная дверь, все счетчики. Высота помещений 2,8 - 3 метра. Подземный паркинг, большой паркинг в 150 метрах от дома Собственная котельная на техническом этаже 4 скоростных лифта (один из которых спускается в подземный паркинг) Колясочная на 1 этаже



136 397 ₽/м²
ЖK "Экопаpк Cоснoвый" - уникальный проект жилoго мaсcива Пеpми. Энeргонaпoлняющий жилoй кoмплeкc комфорт-клaссa "Экопаpк Cоcнoвый" oрганично вписываетcя в пpиpoдную cрeду, пожaлуй, самoго живопиcногo мecта Пеpми микрopайона Веpxняя Kурья! Дoмa рacпoлoжены прямo у лeса и в шаговой доступности реки Кама. В ЖК "Экопарк Сосновый" закрытый двор без машин - место для отдыха! Здесь можно быть абсолютно спокойным, пока ребёнок играет на улице. Свежий воздух и огромное поле для досуга сделают детство вашего ребёнка полноценным и радостным. Выделенные просторные парковки места хватит всем! Детские площадки и все архитектурные формы жилого комплекса выполнены в эко-стиле. Для удобства жителей в домах запроектированы магазины на 1-ых этажах. В квартирах, на первых этажах, запроектированы террасы. Стены домов выполнены из кирпича, по новой, уникальной для Перми, технологии. Удобная и эргономичная квартира 27,15 кв.м. в доме со сдачей в 2 кв. 2024 г. - убирает все лишнее и оставляет больше места именно для жизни! Конфигурация такой квартиры избавит вас от оплаты "пустых" квадратных метров, т.к. планировка очень грамотно продуманна именно для жизни! Квартира с "чистовой" отделкой. Код пользователя: 141782 Номер в базе: 6375229



88 685 ₽/м²
Продаётся уютная студия со свежим евро-ремонтом. На полу ламинат, натяжные потолки, в ванной кафельная плитка , тропический душ, установлена новая сантехника. Полностью вся студия укомплектована новой техникой и мебелью, всё остаётся в подарок Покупателю. Отличное месторасположение, рядом цирк, пл.Дружбы, сквер им.Калашникова ( Розалии Землячки) . В шаговой доступности все необходимое для комфортной жизни: сквер, аллея, магазины, автобусная и трамвайная остановка транспорта ( при желании можно дойти до железнодорожной остановки и доехать без пробок в центр), торговые центры, школа, детский сад и многое другое... Во дворе ухоженная ,закрытая территория. 1 взрослый собственник, без обременений , документы готовы к сделке. Звоните, покажем в любое время по договоренности.



150 915 ₽/м²
1-комн кв. в ЖК "ЛОГИКА", Мотовилихинский район., м-он "Рабочий поселок", в малоэтажном НОВОМ доме, ДОМ СДАН, заселен, в 3-х минутах ходьбы от ул. Уральская, рядом для отдыха расположены : сад Свердлова и Мотовилихинский пруд, в непосредственной близости есть: детские сады, школа 47, ТЦ "Гудвин", супермаркеты, городская больница 4, остановки общественного транспорта, МФЦ и т.д. Закрытая дворовая территория с крытым паркингом, современным мульти-двором на кровле паркинга, дизайнерские холлы , помещения для колясок в подъездах, консьерж, видеонаблюдение. В доме предусмотрена многоступенчатая контурная изоляция за счет использования звукоизолирующих конструкций и материалов. Квартира с чистовой образцовой отделкой класса "комфорт", ( ламинат, натяжной потолок, флизелиновые однотонные обои в светлых тонах, современные межкомнатные двери, сан. техническое оборудование, в с/у кафель на полу и в мокрых зонах, стояки закрыты, установлены индивидуальные приборы учета расхода: воды, электричества, тепла) можно сразу заехать в квартиру и жить. Квартира состоит из кухни, комнаты, гардеробной, лоджии, совмещенного с/у , коридора, вид во двор (западная сторона). Чистая продажа, без обременений, один взрослый собственник.



129 225 ₽/м²
Арт. 134522486 Продается двухкомнатная квартира. Большая кухня, комнаты изолированные. Лоджия застеклена, стеклопакеты по всей квартире. Санузел плитка, пол и стены. Все двери заменены. Полы ламинат. Кондиционер. Дом находится в районе цирка. До остановки идти 5 минут. Тихий район рядом с центром. Во дворе парковка для жителей, шлагбаум. В доме один подъезд, новый лифт. Собственники взрослые, обременения нет, долгов нет. Неспешная продажа и покупка другой квартиры.



103 926 ₽/м²
Продается 2к квартира с шикарным видом на Каму. Квартира очень теплая, с видом на 2 стороны и изолированными комнатами. Дом и подъезд в отличном состоянии, обновлен ремонт и крыша, заменены стандартные счетчики на интерактивные. Сама квартира требует косметического ремонта, но все чисто и без запаха. Рядом сквер, магазины, р.Кама, Цирк, сады и школы. Обременений нет, один взрослый собственник.



290 023 ₽/м²
В самом центре Перми, на тихой Екатерининской, появился дом, который задал новую планку для жилья бизнес-класса. Квартира с ремонтом "под ключ" формата 2 евро, площадью 43,1 кв.м. в шикарном доме бизнес класса. Каждый квадратный метр использован с пользой: просторная кухня- гостиная (13 кв.м.), спальная комната (16 кв.м.), функциональный санузел и прихожая с выделенной гардеробной комнатой. Квартира полностью меблирована по современным канонам и трендам. В квартире: Потолки 2,7 м. , отличная шумоизоляция, теплые полы в прихожей и у балконной двери, в комнате и кухне на полу виниловый ламинат, в коридоре на полу плитка. квартира продается в том виде, в котором она представлена на фото. В ванной: водонагреватель Bali на 50 л., стиральная машина, скрытая ниша со стеклянными полками, эл. полотенцесушитель, эл.теплый пол; В кухне: Установлен кухонный гарнитур со встроенной качественной техникой: микроволновая печь, эл.духовой шкаф, встроенный 2х камерный холодильник, вытяжка над плитой, эл. плита, посудомоечная машина, фильтры для воды Гейзер; Терраса. На уровне второго этажа — над лобби — расположена открытая терраса. Это коллективная гостиная под небом. Дизайнерская мебель, большие столы, контейнеры для зелени. Можно работать, завтракать или читать в тишине, глядя на крыши старого города. 57 квартир. Мало — значит, приватно. Никаких бесконечных коридоров и очередей в лифт. Это клубный формат, где вы знаете соседей в лицо. Это дом для первых людей в своем деле. Для тех, кто много работает и приходит домой за полным восстановлением от городской суеты. Дом, где нет мелочей, в идеальном месте для полноценной жизни, работы и отдыха Паркинг. 23 подземных машиноместа + 5 гостевых. Лифт спускается прямо на парковку. Выходите из машины — заходите в квартиру, минуя улицу. Двор. Камерное пространство, скрытое от посторонних. Игровая площадка, ковровое мощение, сдержанный ландшафт. Дети гуляют под присмотром консьержа. О проекте. Малоэтажный - 6 этажей. Архитектура от международного бюро MLA+. Задача бюро была деликатно вписать современный дом в историческую ткань Разгуляя. Решение: два цвета фасадов (песочный и коричневый), разная высота корпусов, сохранение красной линии застройки. Дом не спорит с соседями-памятниками, а поддерживает их. Локация. Пешком: — Сад Декабристов — Набережная Камы — Театральный сквер — Дом Смышляева, Дом Турчевича — Рестораны, бутики, аптеки, школы Один взрослый владелец. Показ в удобное время.



135 323 ₽/м²
Уважаемая риелторы, квартиру показываем только с клиентом. Продается уютная однокомнатная квартира с евро-ремонтом в кирпичном доме. Квартира очень тёплая, продается полностью с мебелью и техникой, телевизором и кондиционером, заезжай и живи! оформлена в светлых тонах, что создает ощущение простора и уюта. Из окон открывается вид на тихий двор, где расположена детская и спортивная площадки. Кухня компактная, но функциональная, оборудована всем необходимым, включая холодильник , газовую плиту и вытяжку. Совмещенный санузел выполнен в современном стиле с качественной отделкой. В квартире установлены шкафы купе для хранения вещей. Дом оснащен газоснабжением, а во дворе предусмотрена открытая парковка. Рядом ПВЗ озон и вайлдберис, садик, школа, поликлиника и остановки. Пешеходные улицы Дружба и Крупской. Все в пешей доступности. Чистая продажа один взрослый собственник!



112 968 ₽/м²
Уютная, светлая, чистая квартира на Висиме!!! 39 кв.м. полезной площади. Площадь квартиры 34,7 кв.м., 4,3 кв.м.- лоджия!!! Застеклена. торг рассмотрим. Уютная чистая, ухоженная квартира улучшеннной планировки (97серия) Свежий ремонт в светлых тонах. Качественные стеклопакеты, новые обои, линолеум, натяжные потолки. В ванной кафель. Стояк и трубы новые ПВХ (2023 год) Приборы учета воды 2025 года. Двери есть везде и на кухню тоже. 4 удобный этаж. 34,7 кв м +застекленная лоджия 4,3 кв метров. Квартира без перепланировок. Окна выходят на тихую сторону дома. Новый лифт 2025 года В доме организовано ТСЖ. Чистота и порядок! Ухоженный двор с детской площадкой. Низкие коммунальные платежи. Школа , детские садики, школа исскусств, поликлинника "Философия здоровья", магазины, пекарни, хоккейная площадка , остановка в 3 минутах хотьбы. В квартире остается кухонный гарнитур!!!! Никто не прописан, без обременений, без долгов один взрослый собственник, основание приобретения - ДКП. ВСТРЕЧНАЯ ПОКУПКА!!!!!!!! УВАЖАЕМЫЕ РИЕЛТОРЫ помощь в продаже не требуется!!! Совсем не требуется!!! Просьба приходить с покупателями!!!!



153 207 ₽/м²
Арт. 132966296 Продается уютная однокомнатная квартира площадью 42,1 м² в микрорайоне Садовый. Квартира расположена на 8 этаже панельного дома, построенного в 2015 году. В квартире выполнен косметический ремонт, что позволяет сразу въехать и жить. Просторная кухня и раздельный санузел оформлены плиткой. Из окон открывается вид во двор с закрытой территорией и детской площадкой. В доме есть пассажирский и грузовой лифты, а также подземная парковка. ТСЖ обеспечивает низкие коммунальные платежи, закрытую охраняемую территорию, видеонаблюдение и запрет на въезд автомобилей во двор. Отличная транспортная доступность: рядом торговый центр, магазины, остановки, поликлиника и школы. Один взрослый собственник. Поможем купить квартиру в ипотеку и подберем максимально выгодную ставку. Решим любые вопросы, связанные с одобрением кредита в банке. Звоните, покажем в удобное для вас время.



122 490 ₽/м²
Предлагается к продаже малогабаритная 1-комнатная квартира в центре Мотовилихинского района! Основные особенности: - Кирпичный дом 1985 года; - Закрытая территория; - Консьерж; - Два пассажирских лифта и один грузовой. -В выписке ЕРГН квартира со своим с/у Планировка и площадь: - Кухня — 8 м² - Комната — 12 м² - Ванная комната — 3,4 м², есть место для стиральной машины Инфраструктура района развита : -сетевые магазины в шаговой доступности; -фитнесцентр; -поликлиника ; - мед.академия, высшая школа экономики , РЭУ им. Плеханова , торгово-технологический колледж - идеальная локация для студентов . -Требуется ремонт. Удобная транспортная развязка, рядом расположены автобусные и трамвайные остановки. Это отличный вариант для комфортной жизни в центре города! Звоните, и мы организуем для вас просмотр или предоставим дополнительную информацию! Код пользователя: 32630 Номер в базе: 12617577



162 528 ₽/м²
Продаем 2-х комнатную квартиру по адресу Куйбышева, 9 ЛОКАЦИЯ: Самый центр города, окна смотрят на Сквер Уральских добровольцев и эспланаду. Отличная транспортная развязка во все концы города. Рядом детские сады, школы, магазины. КВАРТИРА: в квартире сделан свежий ремонт: Стены выровнены, пол по всей квартире залита стяжка, электрическая проводка заменена полностью. Поставлена новая входная дверь. Остается кухонный гарнитур, холодильник, стиральная машина, водонагреватель, шкаф в коридоре. ДОМ: дом с огороженной территорией, содержится в чистоте и исправности. Полностью обновлен фасад дома. ДОКУМЕНТЫ: 1 взрослый собственник, без использования мат капитала, чистая продажа. Звоните, записывайтесь на просмотр!



203 647 ₽/м²
Качественный кирпичный дом, образованно ТСЖ, разумные эксплуатационные платежи. Уютный современный двор без машин. В доме 4 подъезда и всего 92 квартиры. Квартира выходит окнами на торец дома и во двор. Приятные видовые характеристики. Планировка по типу: кухня-гостиная, спальня со своим гардеробом и лоджией, совмещенный санузел и прихожая с встроенным шкафом-купе. В квартире остается вся мебель и бытовая техника, кондиционеры, водонагреватель и прочее. Чистая продажа, один собственник с момента постройки дома. Просмотры в любой день по договоренности.



136 095 ₽/м²
Продаётся тёплая, светлая квартира в мкр. Садовый. Лоджия застеклена, на ней есть дополнительное место хранения размером с лоджию. Окна стеклопакеты. Просторный двор с детской и спортивной площадками. Территория огорожена. Чистый подъезд. Парковка во дворе за шлагбаумом. Транспортные развязки, поликлиники, сетевые магазины, ТЦ Квартет, ТЦ Карнавал, М-видео, фуд-корты: Сковородка, Пиццбург, Додо-пицца, кафе Сушки, Шаверма и многое другое всё в шаговой доступности. Несколько школ, Гимназия 2, детские сады. Один взрослый собственник. Чистая продажа. Показы по договорённости! Звоните!
| 🔷 Средняя цена продажи: | 7,9 млн ₽ |
| 🔷 Средняя цена за м2: | 182,5 тыс. ₽/м² |
| 🔷 Минимальная стоимость: | 6 млн ₽ |
| 🔷 Самый дорогой объект: | 12,9 млн ₽ |