











148 636 ₽/м²
Арт. 126997085 Срочная продажа! Цена снизили! Квартира-студия в новом доме класса Комфорт. Дом сдан и заселен. Квартира с отделкой White box (предчистовая). Вышка-2. Жизнь здесь спокойная и размеренная, а экологическая обстановка благоприятная. Район расположен на пересечении улиц Целинная и Кузнецкая, что в 20 минутах от центра. Благодаря удобным транспортным развязкам с улиц Соликамская и Целинная можно попасть как в центр города, так и в разные районы города, в том числе и в Орджоникидзевский, Пермский районы, и на восточный обход - выезд из города. Рядом находится большой ТЦ "Кузнецкий", в нём есть гипермаркет "Магнит", кафе, банкоматы, медицинские лаборатории, аптеки, медсанчасть 140, а для ремонта можно найти все в магазине строительных материалов "Стройдвор". В шаговой доступности есть фитнес-центры, спортивные клубы в ДК "Металлист", школа танцев и игровая комната для детей. В ближайшей перспективе рядом появится многофункциональный торгово-спортивный комплекс. На ул. Евгения Пермяка, 8 находится детский сад. Здесь же работают частные группы дошкольного образования, где могут заниматься дети с полутора лет. Для школьников в шаговой доступности на ул. Целинная, 29Б находится Гимназия 7. А в рамках реализации комплексной жилой застройки на территории ЖК "Патриот" предусмотрено строительство нового встроено-пристроенного детского сада на 150 детей. Внутри комплекса, в березовой роще зеленый парк с тропинками, современная рекреационная зона. Современные дома, безопасные дворы Преимущества Новый детский сад Зеленый парк с березовой рощей Колясочная Большая благоустроенная придомовая территория Просторный, безопасный двор с современными детскими и спортивными площадками Предусмотрены большие паркинги около каждого корпуса Бесшумные, современные скоростные лифты Современный дизайн входных групп Индивидуальные счетчики в каждой квартире Помещение консьержа с видеонаблюдением Пожарный пост и сан-узел на первом этаже Система контроля доступа. Управление домофоном и просмотр видео с камеры с помощью смартфона Записывайтесь на просмотр!












146 016 ₽/м²
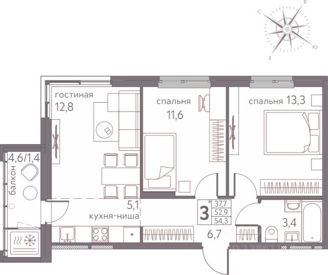
ИПОТЕКА ДЛЯ ВСЕХ от 13,4% на весь срок (только до 31 марта)! - Семейная ипотека от 4,5% на весь срок (до 30.06.2026г.) - Ипотека 10,5% для всех (до 31.03.2026); - Скидка 2% на приобретение квартир при стопроцентной оплате (до 31.03.2026) - Материнский и жилищный сертификаты; - Скидка 3% участникам СВО на все объекты до 31.03.2026); - Трейд- Ин до 31.06.2026) - "Добрые дни от ПЗСП" социальная скидка до 3% (до 31.08.2026) - Скидка за каждого ребёнка (до 31.08.2026) - "Альтернативная ипотека" 12% на готовые квартиры (до 30.04.2026) - Бесплатное такси до офиса продаж Расположение и транспорт: - Пересечение ул. Целинной и Кузнецкой. - Всего 20 минут до центра. Удобный выезд на основные магистрали (Соликамская, Целинная) в разные районы города. - Новая дорожная сеть с выездами на ул. Кузнецкая и Гашкова, новые автобусные остановки. Комфорт и безопасность: - Современные планировки: просторные кухни, гостиные, санузлы и коридоры с гардеробными; - Безбарьерная среда: входные группы на одном уровне с тротуаром; - Безопасность: консьерж, видеонаблюдение, теплые двойные тамбуры; - Технологии: управление домофоном и просмотр камер со смартфона; - Тишина и комфорт: бесшумные скоростные лифты, современные уютные холлы. Инфраструктура и территория: - Благоустроенные дворы: большая и ухоженная придомовая территория, современные детские площадки. О первом этапе: Адрес: ул. Гачегова, 1. Этажность: 8-10 этажей. Срок сдачи: II кв. 2026 г. - III кв. 2026 г. Отделка: ПРЕДЧИСТОВАЯ ("whitе bох"). ЖК "Патриот" — по-настоящему комфортное и современное пространство для жизни.Застройщик: ООО "СЗ "ПЗСП Вышка-2". Проектная декларация размещена на наш.дом.рф












157 594 ₽/м²
Продаётся студия в сданном доме (Серебристая, 7 ( Блок секции БС-1 БС-6, БС-16, БС-17, БС-18)), срок сдачи: I-кв. 2025, общей площадью 63.6 кв.м., на 6 этаже. Теплые кварталы "Погода" — это новый грандиозный проект от создателя Спортивного микрорайона "Ива", федерального застройщика "Девелопмент-Юг" .












146 914 ₽/м²
ИПОТЕКА ДЛЯ ВСЕХ от 13,4% на весь срок (только до 31 марта)! - Семейная ипотека от 4,5% на весь срок (до 30.06.2026г.) - Ипотека 10,5% для всех (до 31.03.2026); - Скидка 2% на приобретение квартир при стопроцентной оплате (до 31.03.2026) - Материнский и жилищный сертификаты; - Скидка 3% участникам СВО на все объекты до 31.03.2026); - Трейд- Ин до 31.06.2026) - "Добрые дни от ПЗСП" социальная скидка до 3% (до 31.08.2026) - Скидка за каждого ребёнка (до 31.08.2026) - "Альтернативная ипотека" 12% на готовые квартиры (до 30.04.2026) - Бесплатное такси до офиса продаж Расположение и транспорт: - Пересечение ул. Целинной и Кузнецкой. - Всего 20 минут до центра. Удобный выезд на основные магистрали (Соликамская, Целинная) в разные районы города. - Новая дорожная сеть с выездами на ул. Кузнецкая и Гашкова, новые автобусные остановки. Комфорт и безопасность: - Современные планировки: просторные кухни, гостиные, санузлы и коридоры с гардеробными; - Безбарьерная среда: входные группы на одном уровне с тротуаром; - Безопасность: консьерж, видеонаблюдение, теплые двойные тамбуры; - Технологии: управление домофоном и просмотр камер со смартфона; - Тишина и комфорт: бесшумные скоростные лифты, современные уютные холлы. Инфраструктура и территория: - Благоустроенные дворы: большая и ухоженная придомовая территория, современные детские площадки. О первом этапе: Адрес: ул. Гачегова, 1. Этажность: 8-10 этажей. Срок сдачи: II кв. 2026 г. - III кв. 2026 г. Отделка: ПРЕДЧИСТОВАЯ ("whitе bох"). ЖК "Патриот" — по-настоящему комфортное и современное пространство для жизни.Застройщик: ООО "СЗ "ПЗСП Вышка-2". Проектная декларация размещена на наш.дом.рф


















































































































| 🔷 Средняя цена продажи: | 6,8 млн ₽ |
| 🔷 Средняя цена за м2: | 167,1 тыс. ₽/м² |
| 🔷 Минимальная стоимость: | 3,3 млн ₽ |
| 🔷 Самый дорогой объект: | 10,6 млн ₽ |