


164 791 ₽/м²
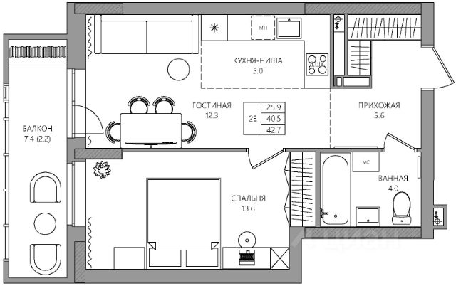
PORTA21 там, где создается сообщество Этот дом — как современная гавань, где встречаются семьи, друзья и соседи. Это место, где формируются традиции, а общие пространства наполняются голосами детей и светом дружеских встреч. Прямо в вашем доме — торговая галерея, где каждый день начинается с маленького удовольствия. Утренний кофе или необходимые повседневные покупки — всё это на расстоянии одного шага. Подземный паркинг Продуманное решение для современных жителей. Здесь предусмотрены станции зарядки для электромобилей, пункт подкачки шин и усилители сотовой связи. Каждая деталь пространства отражает заботу о вашем времени. Просторный зонированный двор на стилобате Место для отдыха, общения и активного досуга. Зонированные пространства позволяют каждому найти своё место: от тихих уголков для размышлений до детских площадок для активных игр. Терраса на крыше Ваш личный оазис для отдыха. Две уникальные зоны: рабочая с минималистичными лавками, встроенными зарядками и столами для работы лаунж зона с видом на Каму среди цветников и искусственных туй. ул. Батумская, 21 22 этажа в 1 секции и 13 этажей во 2 секции Квартиры от 26,6 до 75,9 кв.м 348 квартир Высота потолков 2,72 м Окончание строительства дома — 4 квартал 2027 года











































































