


191 349 ₽/м²
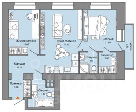
Особенность планировки - собственная терраса, ощутите преимущества загородного отдыха и полного единения с окружающей Вас красотой с видом на гладь воды Камы. В новом жилом комплексе комфорт+ класса "Камаполис", расположенном на берегу реки Камы, продается 2-комнатная квартира площадью 77.00 кв. м. с предчистовой отделкой. Квартира находится в 2 доме. Девелопер проекта - "Железно". Транспортная доступность • Трамвайная остановка всего в 3 минутах пешком; • 15 минут ходьбы до вокзала Пермь-2; • 10 минут на машине до центра города. Продуманный архитектурный проект Камаполис - это жизнь в соразмерной среде, спроектированной известными архитекторами. Жилые этажи "Камаполиса" строят из кирпича и по монолитной технологии, стены обладают высокой устойчивостью к нагрузкам, огнестойкостью, хорошей шумоизоляцией. Такие дома отлично сохраняют первоначальный внешний вид и радуют жителей долгие годы. Концептуальные лобби Концепция проекта продолжается интерьером лобби. Здесь преобладают естественные оттенки и текстуры, а мебель выполнена из экологичных материалов. Для удобства жителей созданы собственные колясочные и велосипедные, а для заботы о домашних любимцах предусмотрена лапомойка. Благоустройство Новый центр притяжения - всесезонный сквер, выполненный в тематике и стилистике пермского периода. Прогулочные зоны, игровые и спортивные площадки, релакс-зоны и места для творчества - все эти мультифункциональные пространства формируют сценарии для любого досуга. Любители особой приватности оценят соседские террасы - это специальные пространства для жителей, расположенные прямо на стилобате паркинга. Любуйтесь на реку, принимайте участие в совместных мероприятиях с соседями, с удовольствием работайте на свежем воздухе и приятно проводите время с близкими. Дополнительные преимущества • Собственный детский сад на 320 мест; • Стрит-ритейл с магазинами и кафе прямо на территории комплекса; • Управление домом через собственное мобильное приложение "Мажордом"; • 3 разных вида отделки на выбор покупателей.



























































































































































