41 190 ₽/м²
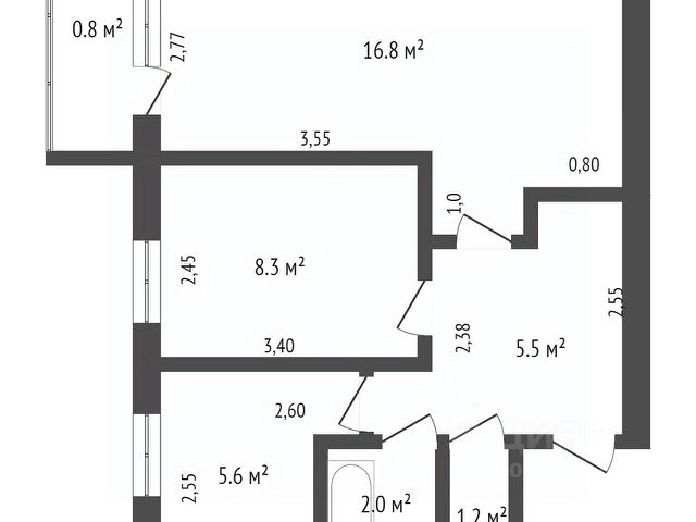
Продается двухкомнатная квартира по адресу: ул. Ломоносова 101, Район "Мелодия" О КВАРТИРЕ: - Этаж 5/5 - Общая площадь квартире 43,7 кв.м. - Жилая площадь 30 кв.м. - Площадь кухни 6 кв.м - Дом обслуживает УК"ООО "Эксплуатация - МКД" - Востребованный район с развитой инфраструктурой РЯДОМ С ДОМОМ НАХОДИТСЯ: - Кафе "Вечернее" - Много продуктовых магазинов, аптеки - Отделение Сбербанка, почта - Городская поликлиника 2 - ТЦ "Мелодия" - Спортивный комплекс "Темп" - Центральная библиотека им.Островского - Стоматологическая поликлиника - Школа 24 - Д/с 3 , 67 - Дворец детского юношеского творчества - Детская поликлиника - Кинотеатр "Мелодия" - Хорошая транспортная развязка во всех направлениях, остановки рядом с домом ОПИСАНИЕ: - Чистая квартира, в жилом состоянии - Крыша после ремонта, проблем нет - В квартире выполнена перепланировка, комнаты изолированы - Произведены все основные замены - Окна ПВХ - Трубы заменены, установлены приборы учета - Санузел совмещен. на стенах панели, пол кафель - В квартире остается: кухонный гарнитур, стенка в гостинной - Подъезд чистый, соседи все порядочные О СДЕЛКЕ: - Продажа альтернативная - Полное юридическое сопровождение - Любая форма оплаты ПОЧЕМУ МЫ: - Федеральная компания - Работаем по стандартам качества - Юридическое сопровождение сделки на всех этапах - Помощь в оформлении ипотеки - Наша деятельность застрахована в компании "ВСК" ЗВОНИТЕ ПРЯМО СЕЙЧАС И ЗАПИСЫВАЙТЕСЬ НА ПРОСМОТР! Понравился наш вариант, а на покупку не хватает средств? Мы согласуем ипотеку. У Вас обмен и своя недвижимость еще не продана? Предложите её, у нас более 40 агентов и чаще всего, покупатель уже есть. Звоните и приходите на просмотр!





























































