178 788 ₽/м²
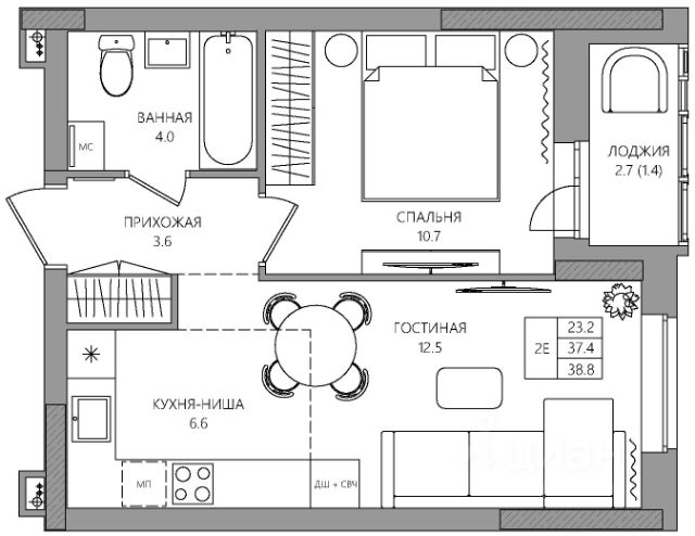
Уютная 1-к квартира 33 м² в монолитно-кирпичном доме на Садовом Продается светлая и уютная 1-комнатная квартира в одном из самых востребованных районов города — м/р Садовый. О доме: — Современный монолитно-кирпичный дом 2009 года постройки. — Чистый подъезд, хорошие соседи. — Комфортный 4 этаж из 9. О квартире: Общая площадь 33 кв. м. + просторная лоджия (дополнительное место для отдыха или хранения). — Кухня (10 кв. м.): Мечта любой хозяйки. Остается стильный кухонный гарнитур и встроенная техника. — Жилая комната (16,7 кв. м.): Правильной формы. Оставляем диван, шкаф и тумбу под телевизор — можно заезжать и жить. — Санузел: Совмещенный, полностью в кафельной плитке. Установлен водонагреватель (остается вам), что обеспечит комфорт в период летних отключений воды. Инфраструктура: Максимально удобное расположение. Всего 3 минуты пешком от двери вашей квартиры до остановки общественного транспорта. В шаговой доступности — всё необходимое: сетевые магазины, аптеки, уютные кафе,пункты выдачи и прочая необходимая инфраструктура. Звоните, отвечу на вопросы и организую показ в удобное время! Квартира-студия в дешевой новостройке в Краснокамске.
























































